Эта элегантная современная вилла, построенная в 2020 году и выходящая окнами на юг , находится в отличном состоянии. Она отличается изысканным дизайном, просторными жилыми зонами и очень привлекательным центральным расположением в Сьюдад-Кесаде . Сочетая современную архитектуру с оптимальным комфортом, она идеально подходит для семей, в качестве основного места жительства или для роскошного отдыха .
Современная отдельно стоящая вилла (построена в 2020 году)
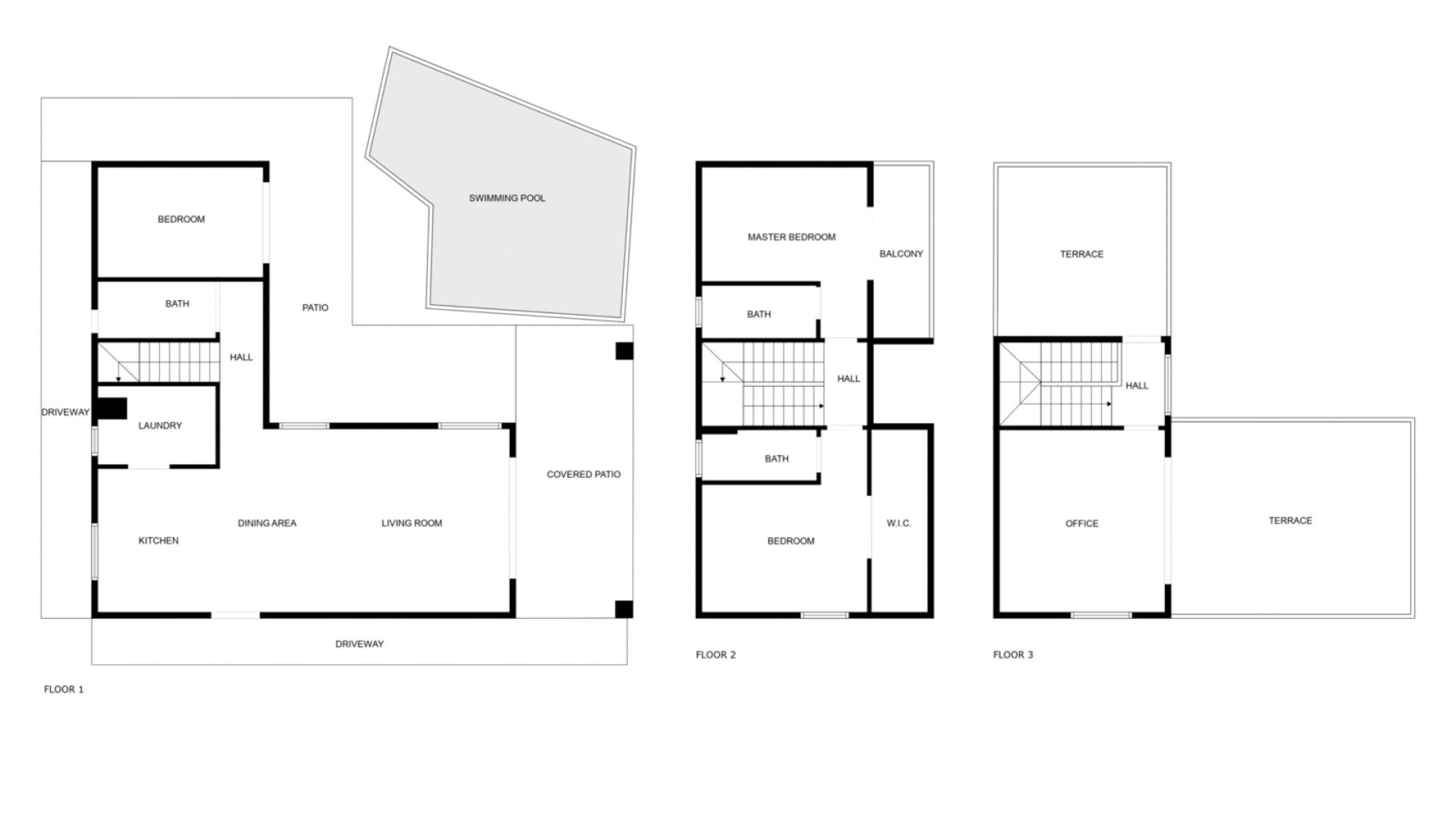
4 спальни и 3 современные ванные комнаты
Жилая площадь 153 м² на частном участке площадью 533 м².
Частный L-образный бассейн с морской водой (примерно 7 х 4 метра)
Охраняемые парковочные места, расположенные вдали от проезжей части, с закрытым въездом.
Открытая кухня, оборудованная высококачественной бытовой техникой.
Окна выходят на юг, чтобы наслаждаться солнцем весь день.
Терраса на крыше с панорамным видом.
прачечная и подсобное помещение
Кондиционирование воздуха (охлаждение и обогрев)
Теплый пол в ванных комнатах
солнечные панели
Класс энергоэффективности: B
Магазины, кафе и другие удобства находятся в нескольких минутах ходьбы (примерно 300 м).
Вилла имеет три этажа и была тщательно спроектирована для оптимизации использования естественного освещения, обеспечения комфорта и функциональности.
На первом этаже расположено светлое, просторное жилое пространство открытой планировки, включающее гостиную, столовую и кухню, создающие уютную и воздушную атмосферу. Большие окна выходят на частный бассейн и сад, плавно соединяя интерьер с экстерьером. Отдельная прачечная обеспечивает дополнительное удобство, а элегантная гостевая спальня и ванная комната дополняют общее впечатление.
На первом этаже расположены две просторные спальни, каждая со своей ванной комнатой. В одной спальне есть гардеробная, а из другой — выход на отдельный балкон с видом на сад и бассейн.
На верхнем этаже находится четвертая многофункциональная комната, идеально подходящая для офиса, студии или дополнительной гостевой спальни. С двух больших террас открывается панорамный вид на Сьюдад-Кесаду, окружающую сельскую местность, солончаки и даже вид на Средиземное море .
Открытые пространства спроектированы таким образом, чтобы их было легко содержать и использовать круглый год. К услугам гостей несколько террас для обедов и отдыха, солярий и частный бассейн с морской водой. Территория полностью огорожена, также имеется охраняемая парковка у входа.
Эта вилла расположена в тихом тупике, всего в нескольких минутах от центра Сьюдад-Кесады , что делает ее одним из самых привлекательных и доступных мест в этом районе. Местные магазины (супермаркеты, кафе, рестораны, аптеки и т. д.) находятся всего в 300 метрах .
Сьюдад-Кесада — это оживленный и процветающий город, предлагающий широкий спектр развлечений, включая поле для гольфа La Marquesa , боулинг, мини-гольф, аквапарк, велосипедные дорожки и живописные пешеходные маршруты. Наличие известных норвежских и британских международных школ делает этот район особенно привлекательным для семей.
Пляжи Гуардамар-дель-Сегура: около 9 километров (10 минут)
Аэропорт Аликанте: приблизительно 38 км (35 минут).
Поле для гольфа La Marquesa: ок. 4 километра
Магазины и другие услуги: примерно 300 м
Благодаря своему центральному и тихому расположению, этот объект недвижимости идеально подходит для постоянного проживания, в качестве второго дома или привлекательной инвестиции в арендную недвижимость .
Окна с двойным остеклением для повышения энергоэффективности
Не требующий особого ухода бассейн с соленой водой
Несколько террас для отдыха и расслабления.
Солярий с панорамным и частичным видом на море.
Современная мебель и высококачественные напольные покрытия.
Южная ориентация гарантирует максимальное проникновение естественного света во весь дом.