Esta elegante villa contemporánea con orientación sur , construida en 2020 y mantenida con excelentes calidades, ofrece un diseño elegante, amplios espacios habitables y una ubicación céntrica muy codiciada en Ciudad Quesada . Combinando arquitectura moderna con comodidad para el día a día, la propiedad es ideal para vivir en familia, como residencia permanente o para vacaciones de lujo .
Villa independiente contemporánea (construida en 2020)
4 dormitorios y 3 baños modernos
153 m² construidos en parcela privada de 533 m²
Piscina privada de agua salada en forma de L (aprox. 7 x 4 metros)
Estacionamiento seguro fuera de la carretera en la entrada cerrada
Cocina abierta con electrodomésticos de calidad.
Orientación sur para disfrutar del sol todo el día.
Solárium en la azotea con vistas panorámicas
Lavandería / lavadero y trastero
Aire acondicionado (frío y calor)
Calefacción por suelo radiante en baños
Paneles solares
Clasificación de eficiencia energética: B
A poca distancia de tiendas, cafeterías y servicios (aprox. 300 m)
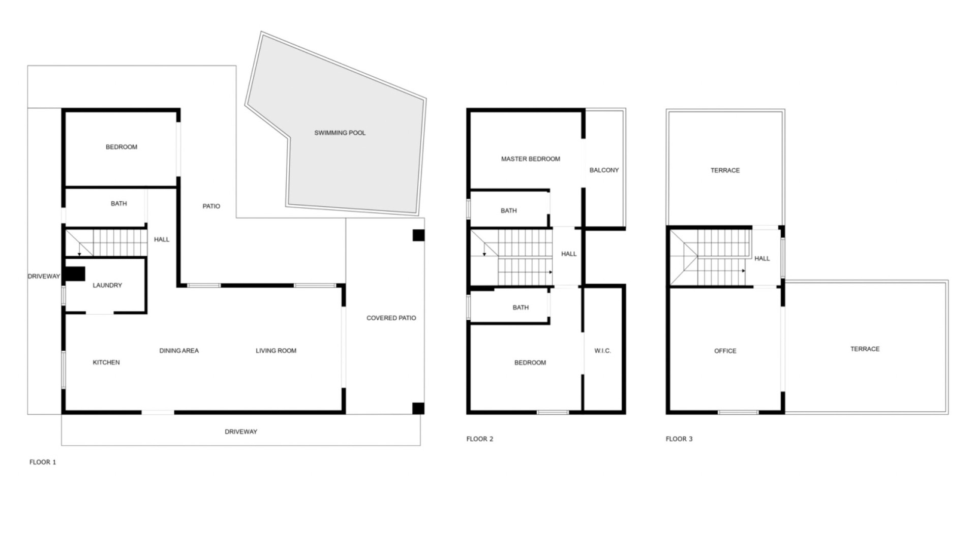
La villa está distribuida en tres niveles , cuidadosamente diseñados para maximizar la luz natural, la comodidad y la funcionalidad.
La planta principal cuenta con una luminosa sala de estar, comedor y cocina de planta abierta, creando un ambiente acogedor y espacioso. Grandes ventanales con vistas a la piscina privada y al jardín, conectando a la perfección la vida interior y exterior. Un lavadero independiente aporta practicidad, mientras que un elegante dormitorio de invitados y un baño completo completan esta planta.
En la primera planta encontrará dos amplios dormitorios, cada uno con baño en suite. Uno de ellos cuenta con vestidor, mientras que el otro da a un balcón privado con vistas al jardín y a la piscina.
La planta superior ofrece una versátil cuarta habitación, ideal como despacho, estudio o espacio adicional para invitados. Desde aquí, dos amplias terrazas ofrecen vistas panorámicas de Ciudad Quesada, el campo circundante, las salinas e incluso un atisbo del mar Mediterráneo .
Los espacios exteriores están diseñados para facilitar el mantenimiento y disfrutarlos durante todo el año, con múltiples terrazas para comer y relajarse, un solárium y una piscina privada de agua salada. La parcela, completamente vallada, también ofrece aparcamiento seguro dentro de la entrada.
Ubicada en una tranquila calle sin salida a pocos minutos del corazón de Ciudad Quesada , esta villa goza de una de las ubicaciones más convenientes y codiciadas de la zona. Servicios cotidianos como supermercados, cafeterías, restaurantes, farmacias y tiendas se encuentran a solo 300 metros a pie .
Ciudad Quesada es una comunidad vibrante y consolidada que ofrece una amplia gama de actividades de ocio, como golf en La Marquesa , bolos, minigolf, un parque acuático, rutas ciclistas y pintorescos paseos por la naturaleza. La presencia de prestigiosos colegios internacionales noruegos y británicos realza aún más el atractivo de la zona para las familias.
Playas de Guardamar del Segura: aprox. 9 kilómetros (10 minutos)
Aeropuerto de Alicante: aprox. 38 km (35 minutos)
La Marquesa Golf: aprox. 4 kilometros
Comercios y servicios: aprox. 300 m
Esta ubicación central pero tranquila hace que la propiedad sea perfectamente adecuada para vivir a tiempo completo, uso vacacional o inversión de alquiler de alto valor .
Ventanas de doble acristalamiento para eficiencia energética
Piscina de agua salada de fácil mantenimiento
Múltiples terrazas para el entretenimiento y la relajación.
Solárium con vistas panorámicas y parciales al mar
Acabados contemporáneos y suelos de alta calidad.
Orientación sur que maximiza la luz natural en toda la casa.