Ta elegancka, nowoczesna willa z ekspozycją południową, wybudowana w 2020 roku , jest w doskonałym stanie. Charakteryzuje się wyrafinowanym designem, przestronnymi salonami i niezwykle pożądaną, centralną lokalizacją w Ciudad Quesada . Łącząc nowoczesną architekturę z optymalnym komfortem, idealnie nadaje się dla rodzin, jako główne miejsce zamieszkania lub na luksusowe wakacje .
Nowoczesna wolnostojąca willa (wybudowana w 2020 r.)
4 sypialnie i 3 nowoczesne łazienki
153 m² powierzchni mieszkalnej na prywatnej działce o powierzchni 533 m²
Prywatny basen w kształcie litery L z wodą morską (ok. 7 x 4 metry)
Bezpieczne miejsca parkingowe, z dala od drogi publicznej, z zamkniętym wjazdem.
Otwarta kuchnia wyposażona w wysokiej jakości sprzęt AGD.
Zwrócony na południe, aby cieszyć się słońcem przez cały dzień.
Taras na dachu z widokiem panoramicznym
pralnia i pomieszczenie gospodarcze
Klimatyzacja (chłodzenie i ogrzewanie)
Ogrzewanie podłogowe w łazienkach
panele słoneczne
Klasa efektywności energetycznej: B
W odległości krótkiego spaceru (ok. 300 m) znajdują się sklepy, kawiarnie i inne udogodnienia.
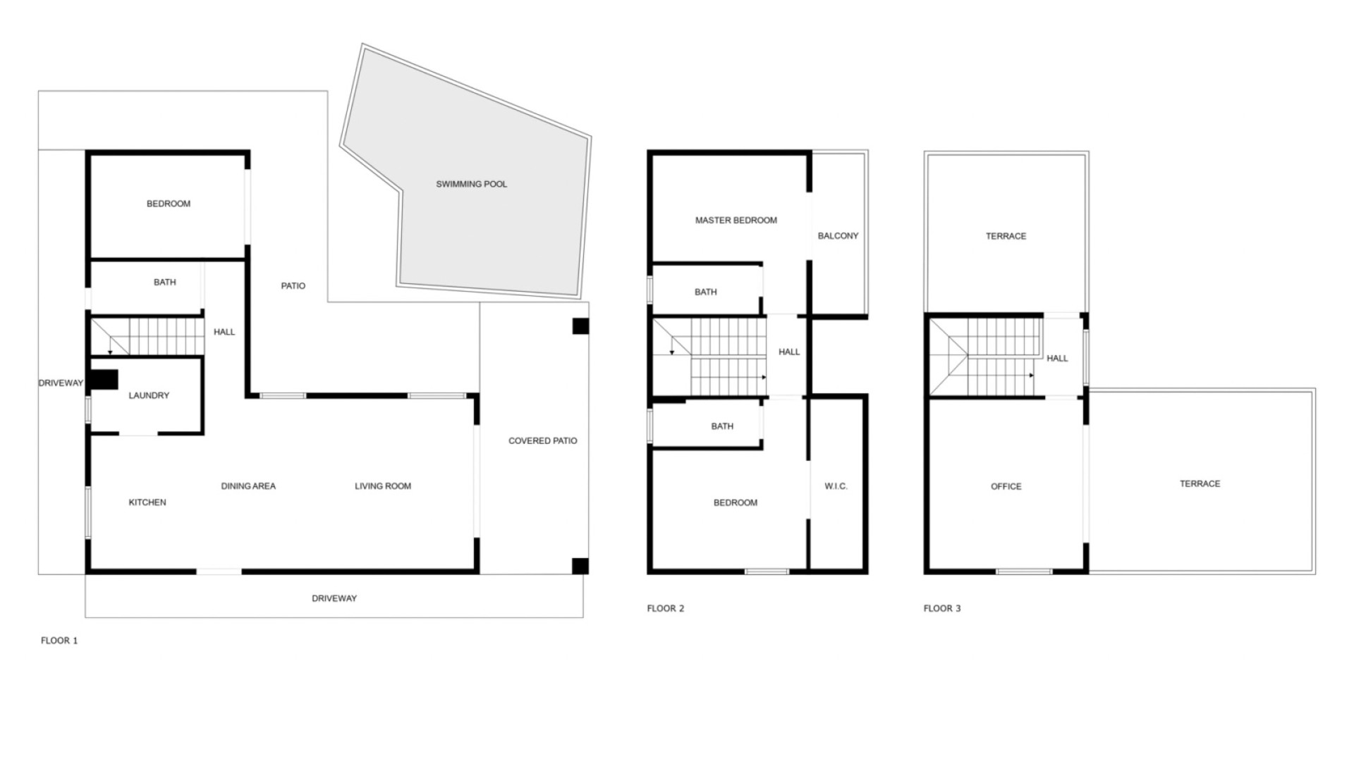
Willa ma trzy piętra i została starannie zaprojektowana tak, aby zoptymalizować wykorzystanie naturalnego światła, zapewnić wygodę i funkcjonalność.
Parter oferuje jasną, otwartą przestrzeń dzienną, obejmującą salon, jadalnię i kuchnię, tworząc przyjazną i przestronną atmosferę. Duże okna wychodzą na prywatny basen i ogród, płynnie łącząc wnętrze z otoczeniem. Oddzielna pralnia zapewnia dodatkową wygodę, a elegancka sypialnia gościnna i łazienka dopełniają całość tego poziomu.
Na pierwszym piętrze znajdują się dwie przestronne sypialnie, każda z własną łazienką. Jedna z sypialni posiada garderobę, druga ma dostęp do prywatnego balkonu z widokiem na ogród i basen.
Na piętrze znajduje się czwarty, wielofunkcyjny pokój, idealny na biuro, studio lub dodatkową sypialnię gościnną. Z dwóch dużych tarasów roztacza się panoramiczny widok na Ciudad Quesada, okoliczne tereny wiejskie, słone bagna, a nawet fragment Morza Śródziemnego .
Przestrzenie zewnętrzne zaprojektowano z myślą o łatwej konserwacji i całorocznym użytkowaniu, oferując kilka tarasów do spożywania posiłków i relaksu, solarium oraz prywatny basen ze słoną wodą. Całkowicie ogrodzona posesja oferuje również bezpieczny parking przy wejściu.
Ta willa położona jest w cichej ślepej uliczce, zaledwie kilka minut od centrum Ciudad Quesada , co czyni ją jedną z najbardziej pożądanych i niedrogich lokalizacji w okolicy. Lokalne sklepy (supermarkety, kawiarnie, restauracje, apteki itp.) znajdują się zaledwie 300 metrów od obiektu.
Ciudad Quesada to tętniąca życiem i dobrze prosperująca społeczność oferująca szeroki wachlarz możliwości spędzania wolnego czasu, w tym pole golfowe La Marquesa , kręgielnię, minigolfa, park wodny, ścieżki rowerowe i malownicze szlaki turystyczne. Obecność renomowanych norweskich i brytyjskich szkół międzynarodowych sprawia, że okolica ta jest szczególnie atrakcyjna dla rodzin.
Plaże Guardamar del Segura: około 9 kilometrów (10 minut)
Lotnisko w Alicante: około 38 km (35 minut)
Pole golfowe La Marquesa: ok. 4 kilometry
Sklepy i inne usługi: ok. 300 m
Dzięki centralnej i spokojnej lokalizacji, nieruchomość ta doskonale nadaje się na stałe miejsce zamieszkania, drugi dom lub atrakcyjną inwestycję pod wynajem .
Okna z podwójnymi szybami zapewniające lepszą efektywność energetyczną
Basen z wodą słoną o niskich wymaganiach konserwacyjnych
Kilka tarasów umożliwiających relaks i wypoczynek.
Solarium z widokiem panoramicznym i częściowym na morze
Nowoczesne meble i wysokiej jakości podłogi.
Południowa ekspozycja gwarantuje maksymalną ilość naturalnego światła w całym domu.