Experimente la vida urbana contemporánea en Alicante con estos apartamentos tipo loft dúplex recién reformados en el vibrante barrio de Benalúa. Con distribuciones de 1 y 2 dormitorios, terrazas privadas, techos altos y piscina comunitaria, esta exclusiva promoción combina estilo, comodidad y conveniencia a tan solo 1 km de la costa mediterránea.
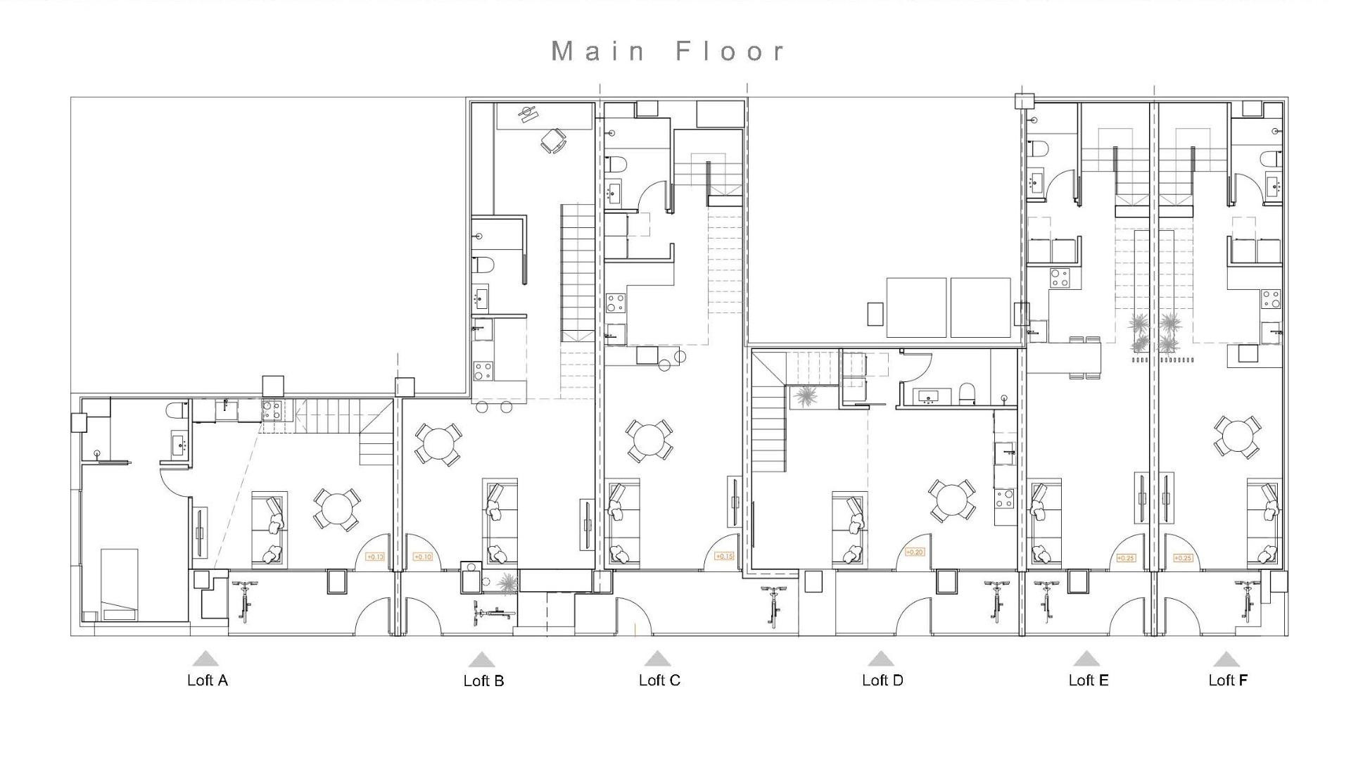
Este singular proyecto residencial en el barrio de Benalúa, en Alicante, transforma seis antiguos locales comerciales en elegantes apartamentos tipo loft dúplex. Cada propiedad cuenta con interiores abiertos y luminosos, y techos altos que crean un ambiente amplio y diáfano. Las plantas superiores albergan dormitorios con baños completos para mayor privacidad, mientras que las plantas inferiores, de planta abierta, incluyen sala de estar, comedor y cocina. Terrazas privadas y entradas independientes aumentan la comodidad y la exclusividad. Los residentes también disfrutan de acceso a una piscina comunitaria, ideal para relajarse en el cálido clima mediterráneo.
Ubicada en Benalúa, uno de los barrios más dinámicos y mejor comunicados de Alicante, esta promoción ofrece acceso inmediato a servicios cotidianos y atracciones culturales. Las playas de arena de Alicante están a solo 1 km, mientras que el centro de la ciudad, la estación de tren y zonas comerciales como El Corte Inglés se encuentran a poca distancia a pie. Para el ocio, el puerto deportivo de Alicante, el puerto y el campo de golf de Alicante son fácilmente accesibles, mientras que el aeropuerto de Alicante-Elche está a solo 12 minutos en coche. Esta ubicación privilegiada ofrece la combinación perfecta de vida costera, comodidad urbana y potencial de inversión.