Descubra una oportunidad única de adquirir un moderno loft dúplex en el corazón de Benalúa, Alicante. Estas elegantes viviendas de 1 y 2 dormitorios combinan un diseño contemporáneo con techos altos, terrazas privadas y acceso a una piscina comunitaria, a solo 1 km de la costa mediterránea. Ideales para vivir en la ciudad, disfrutar de unas vacaciones o invertir con un gran potencial de alquiler.
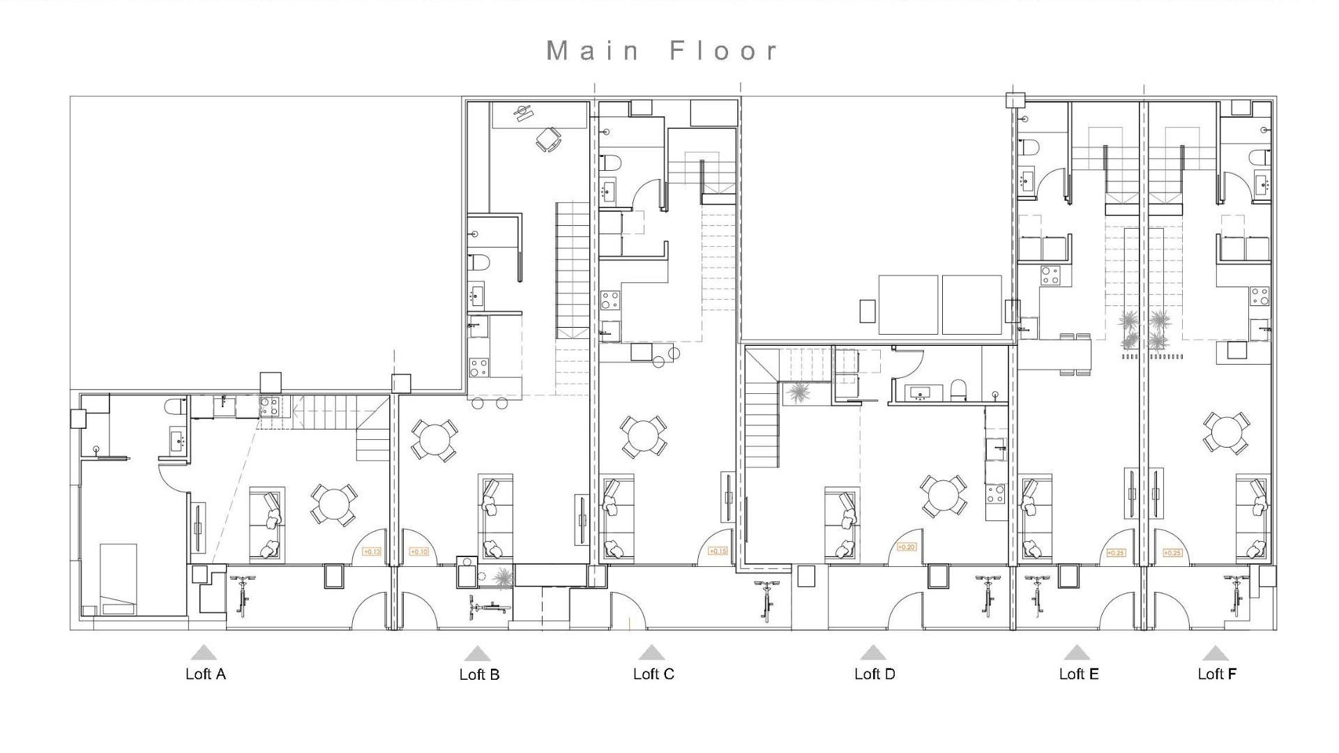
Esta exclusiva promoción en Benalúa, Alicante, transforma seis antiguos locales comerciales en modernos apartamentos tipo loft dúplex con innovadoras distribuciones diáfanas. Cada propiedad cuenta con un interior amplio y luminoso, un dormitorio en la planta superior con baño completo y una terraza privada para disfrutar del aire libre. Los techos altos y los amplios ventanales potencian la luz natural, creando un ambiente amplio y acogedor.
Los residentes disfrutan de acceso a una piscina comunitaria y se benefician de la privacidad de sus entradas independientes. Tanto si busca una elegante residencia urbana, una casa de vacaciones o una propiedad de alquiler rentable, estos lofts ofrecen diseño contemporáneo, funcionalidad y comodidad en uno de los barrios más codiciados de Alicante.
Ubicados en Benalúa, un barrio vibrante y bien comunicado, estos lofts dúplex se encuentran a solo 1 km de las playas de Alicante y a 0,8 km de la estación de Renfe. Los residentes se encuentran a poca distancia a pie de tiendas, cafeterías, restaurantes, centros culturales y lugares de interés como El Corte Inglés (0,7 km) y el Palacio de Justicia de Alicante (0,5 km). El aeropuerto de Alicante está a 12 minutos en coche, mientras que Alicante Golf está a solo 7 km. Disfrute de un estilo de vida urbano con encanto mediterráneo, excelente transporte público y acceso inmediato a zonas verdes, el puerto deportivo y las atracciones de la ciudad.
Reserva hoy tu moderno loft dúplex en Benalúa, Alicante: ¡elegante, céntrico y perfecto para vivir en la ciudad o como inversión!