Poczuj komfort nowoczesnego, miejskiego życia w Alicante w tych niedawno odnowionych, dwupoziomowych apartamentach typu loft, położonych w tętniącej życiem dzielnicy Benalúa. Ten ekskluzywny kompleks oferuje apartamenty z jedną lub dwiema sypialniami, prywatnymi tarasami, wysokimi sufitami i wspólnym basenem. Łączy styl, komfort i wygodę, zaledwie 1 km od Morza Śródziemnego.
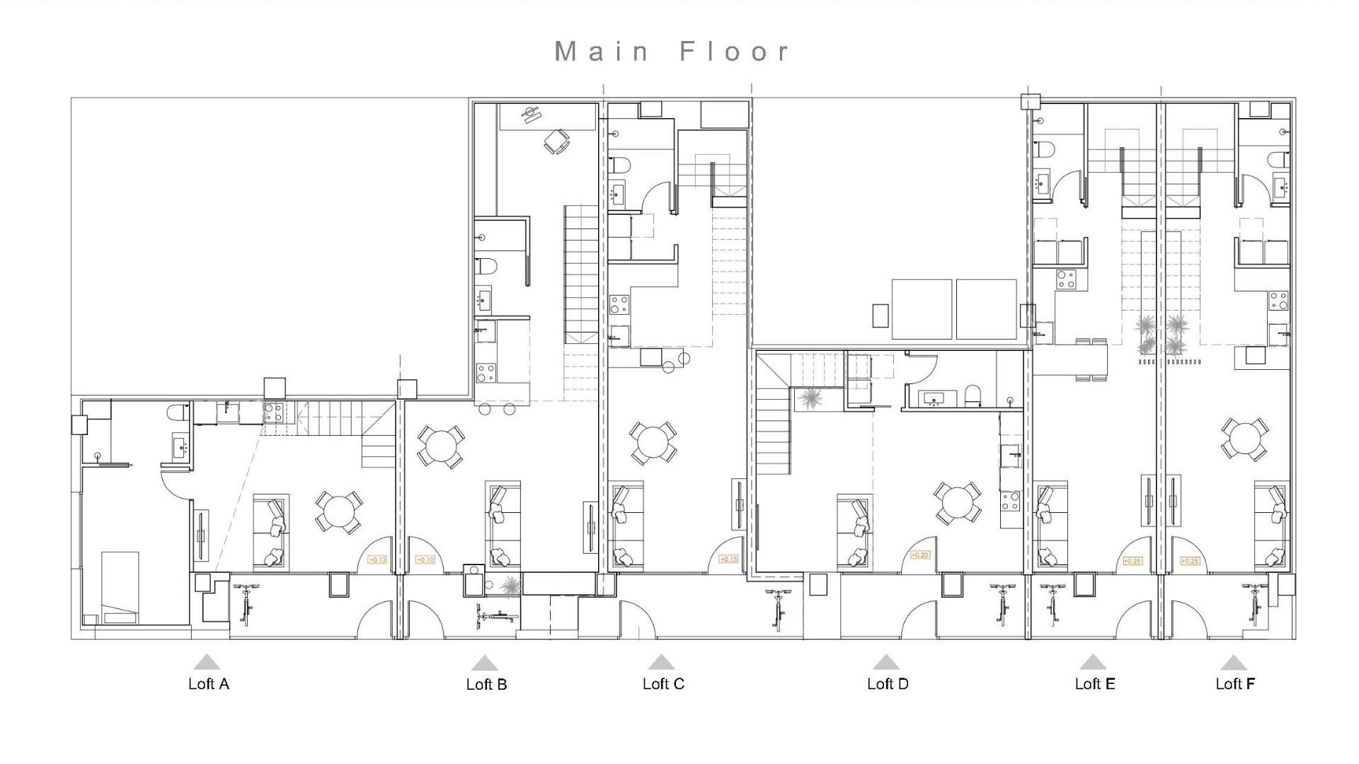
Ten wyjątkowy projekt mieszkaniowy, zlokalizowany w dzielnicy Benalúa w Alicante, przekształca sześć dawnych lokali komercyjnych w eleganckie, dwupoziomowe lofty. Każdy apartament charakteryzuje się wyjątkowym dostępem do naturalnego światła dzięki otwartej przestrzeni i wysokim sufitom, co tworzy przestronną i przestronną atmosferę. Na wyższych piętrach znajdują się sypialnie z łazienkami, co zapewnia dodatkową prywatność, a na otwartym planie na parterze znajduje się salon, jadalnia i kuchnia. Prywatne tarasy i osobne wejścia zwiększają komfort i ekskluzywność. Mieszkańcy mają również dostęp do wspólnego basenu, idealnego do relaksu w łagodnym śródziemnomorskim klimacie.
W Benalúa, jednej z najbardziej tętniących życiem i dobrze skomunikowanych dzielnic Alicante, ten kompleks mieszkaniowy oferuje bezpośredni dostęp do wszystkich udogodnień i atrakcji kulturalnych. Piaszczyste plaże Alicante oddalone są zaledwie o 1 km, a centrum miasta, dworzec kolejowy i duże domy towarowe, takie jak El Corte Inglés, znajdują się w zasięgu krótkiego spaceru. W pobliżu znajduje się marina i pole golfowe, a lotnisko Alicante-Elche oddalone jest o zaledwie 12 minut jazdy samochodem. Ta doskonała lokalizacja idealnie łączy urok nadmorskiego życia, zalety życia w mieście i duży potencjał inwestycyjny.