Découvrez le confort de la vie urbaine moderne à Alicante dans ces appartements duplex loft récemment rénovés, situés dans le quartier animé de Benalúa. Ce complexe exclusif propose des appartements d'une ou deux chambres avec terrasses privatives, hauts plafonds et piscine commune. Il allie style, confort et praticité à seulement 1 km de la mer Méditerranée.
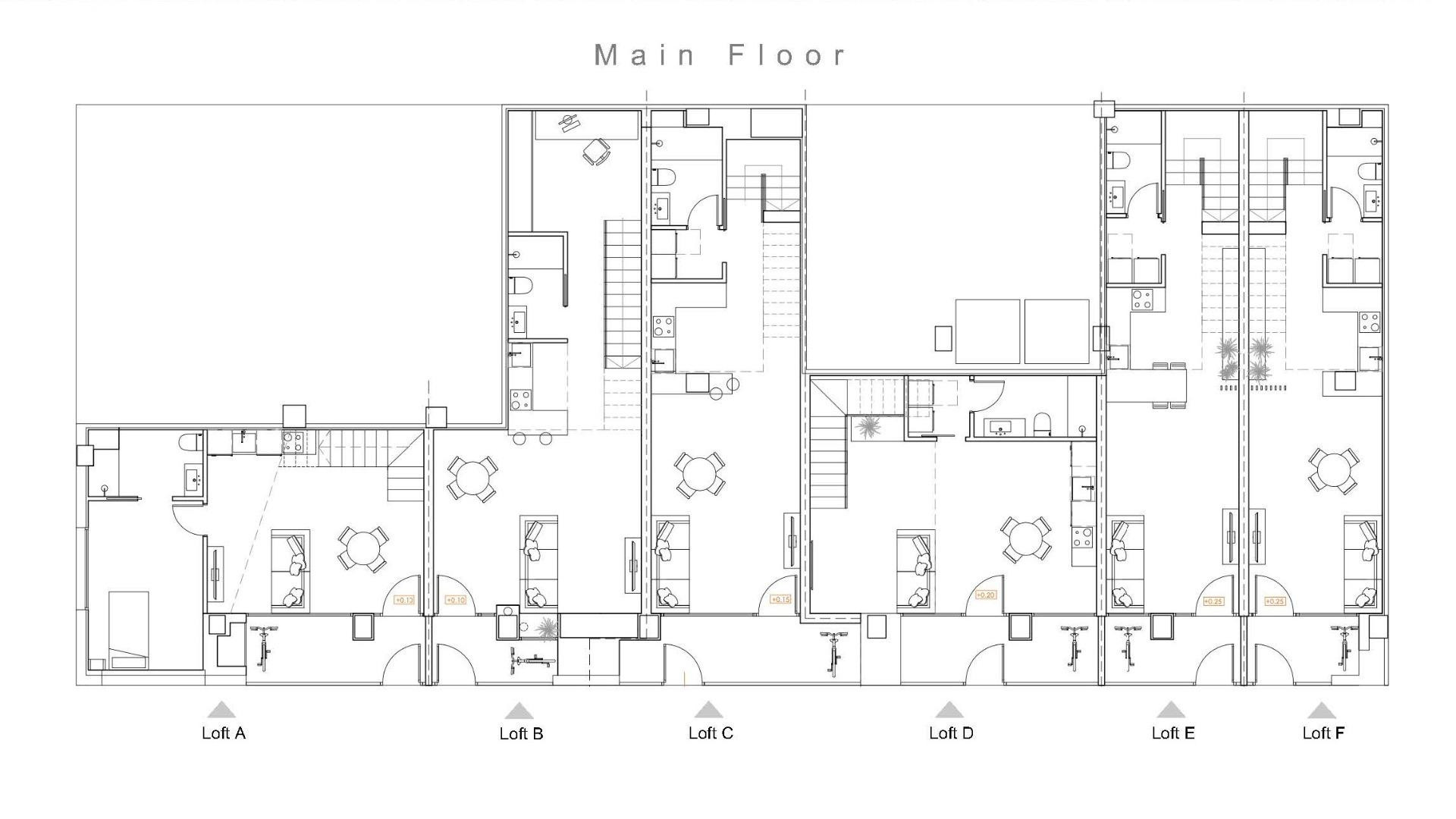
Ce projet résidentiel unique, situé dans le quartier de Benalúa à Alicante, transforme six anciens espaces commerciaux en élégants lofts duplex. Chaque appartement bénéficie d'une luminosité exceptionnelle grâce à ses plans ouverts et ses hauts plafonds, créant une atmosphère spacieuse et aérée. Les étages supérieurs abritent des chambres avec salle de bains privative pour plus d'intimité, tandis que le rez-de-chaussée, en espace ouvert, comprend un salon, une salle à manger et une cuisine. Terrasses privatives et entrées indépendantes renforcent le confort et l'exclusivité. Les résidents ont également accès à une piscine commune, idéale pour se détendre sous le doux climat méditerranéen.
À Benalúa, l'un des quartiers les plus dynamiques et bien desservis d'Alicante, ce complexe résidentiel offre un accès direct à toutes les commodités et attractions culturelles. Les plages de sable fin d'Alicante sont à seulement 1 km, tandis que le centre-ville, la gare et les grands magasins comme El Corte Inglés sont facilement accessibles à pied. Pour vos loisirs, le port de plaisance, le port de plaisance et le golf d'Alicante sont à proximité immédiate, et l'aéroport d'Alicante-Elche est à seulement 12 minutes en voiture. Cet emplacement privilégié allie idéalement le charme de la vie côtière, les avantages de la ville et un fort potentiel d'investissement.