Новые дома всего в 200 метрах от пляжа в Пуэрто-де-Масаррон
Эксклюзивная жизнь на побережье Коста-Калида
Представляем новый жилой комплекс современных домов в Пуэрто-де-Масаррон, расположенный всего в 200 метрах от прекрасного пляжа Плайя-Негра. Этот проект, расположенный в одном из самых востребованных прибрежных районов региона Мурсия, предлагает исключительную возможность насладиться средиземноморской жизнью рядом с морем, необходимыми удобствами и природным окружением.
Пуэрто-де-Масаррон известен своими потрясающими пляжами, кристально чистой водой, очаровательной пристанью для яхт и непринужденной атмосферой. Благодаря отличным услугам, возможностям для активного отдыха на свежем воздухе и теплому климату круглый год, это идеальное место как для постоянного проживания, так и для отдыха.
Современный дизайн и функциональная планировка
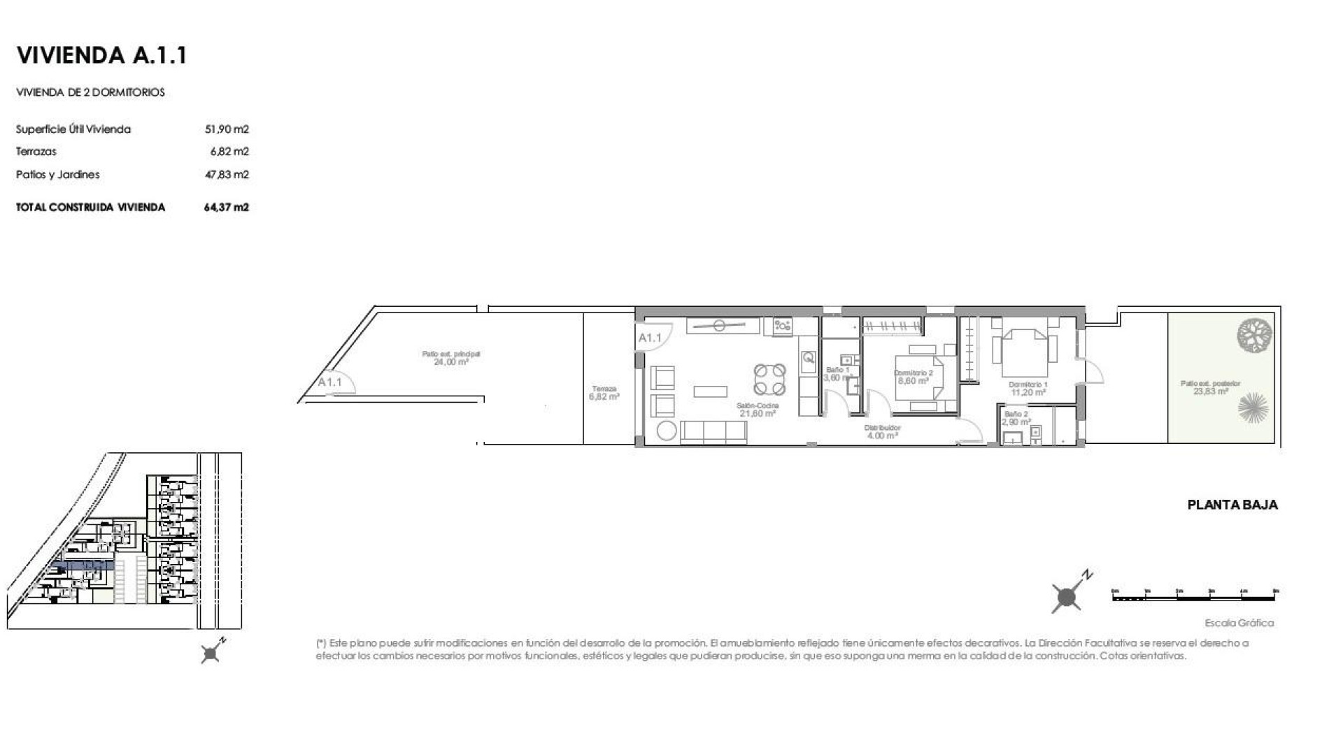
Этот эксклюзивный комплекс состоит из 30 современных домов с 2 спальнями и 1 или 2 ванными комнатами, тщательно спроектированных для обеспечения комфорта, стиля и эффективности. Низкоэтажный комплекс включает в себя квартиры на первом этаже с частными террасами и садами, а также квартиры на втором этаже с террасами и частными соляриями на крыше. Дома предлагают частные парковочные места на территории или внутри резиденции.
Дома ориентированы на максимальное использование естественного света, с открытой планировкой жилых помещений, большими окнами и высококачественной отделкой. Первая фаза предлагает настраиваемые дома с функциональной планировкой, которые можно персонализировать в соответствии с вашими потребностями.
Дома на первом этаже включают частный сад, задний дворик и парковку на участке или общественную парковку.
Дома на верхнем этаже предлагают частную зону доступа на первом этаже, террасу на втором этаже и солярий на крыше, а также выделенное парковочное место.
Дополнительные опции включают частные бассейны на террасах первого этажа или джакузи на соляриях.
Высококачественные характеристики
Каждая недвижимость включает
Усиленную входную дверь
Предварительную установку для канального кондиционирования
Полностью оборудованные ванные комнаты с мебелью, зеркалами и душевыми перегородками
Открытые пространства, предназначенные для барбекю, перголы и зоны отдыха
Этот жилой комплекс предлагает безопасную, семейную и устоявшуюся среду, в шаговой доступности от супермаркетов, школ, медицинских услуг, парков и пляжа.
Выгодное расположение в Пуэрто-де-Масаррон
Расстояния до основных достопримечательностей
Плайя-Негра 0,2 км
Мариna Масаррон 2 км
Торговый центр Mazarrón Park 5 км
Картахена 35 км
Город Мурсия 70 км
Аэропорт Мурсия Корвера 45 км
Поля для гольфа Camposol и Hacienda del Álamo 25–35 км
Наслаждайтесь водными видами спорта, пешими и велосипедными прогулками в близлежащей Сьерра-де-лас-Морерас и откройте для себя лучшее из образа жизни Коста-Калида.
Сделайте Средиземноморье своим домом
Не упустите возможность приобрести новую недвижимость в нескольких шагах от пляжа в Пуэрто-де-Масаррон. Свяжитесь с нами сегодня, чтобы узнать о наличии, подробностях и назначить просмотр.