Nowe domy zaledwie 200 metrów od plaży w Puerto de Mazarrón
Ekskluzywne życie na wybrzeżu Costa Cálida
Przedstawiamy nową inwestycję mieszkaniową składającą się z nowoczesnych domów w Puerto de Mazarrón, położoną zaledwie 200 metrów od pięknej plaży Playa Negra. Projekt ten, zlokalizowany w jednym z najbardziej pożądanych obszarów wybrzeża regionu Murcji, oferuje wyjątkową okazję do cieszenia się śródziemnomorskim stylem życia w pobliżu morza, niezbędnych udogodnień i naturalnego otoczenia.
Puerto de Mazarrón słynie z przepięknych plaż, krystalicznie czystej wody, uroczej przystani i relaksującej atmosfery. Dzięki doskonałym usługom, możliwościom spędzania wolnego czasu na świeżym powietrzu i ciepłemu klimatowi przez cały rok, jest to idealne miejsce zarówno do stałego zamieszkania, jak i na wakacyjne wypady.
Nowoczesny design i funkcjonalne rozkłady
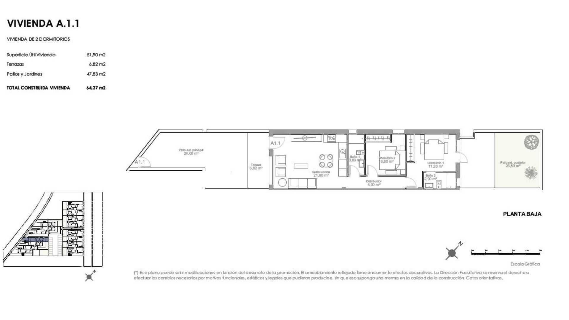
Ta ekskluzywna inwestycja składa się z 30 nowoczesnych domów z 2 sypialniami i 1 lub 2 łazienkami, starannie zaprojektowanych z myślą o komforcie, stylu i funkcjonalności. Niskie budynki obejmują lokale na parterze z prywatnymi tarasami i ogrodami, a także domy na pierwszym piętrze z tarasami i prywatnymi solarium na dachu. Domy oferują prywatne miejsca parkingowe na terenie posesji lub w obrębie rezydencji.
Domy są zorientowane tak, aby maksymalnie wykorzystać naturalne światło, z otwartymi przestrzeniami mieszkalnymi, dużymi oknami i wysokiej jakości wykończeniem. Pierwsza faza oferuje domy z możliwością dostosowania do indywidualnych potrzeb, z funkcjonalnym rozkładem pomieszczeń, który można spersonalizować zgodnie z własnym stylem życia.
Domy na parterze obejmują prywatny ogród, tylne patio i parking na działce lub parking wspólny.
Domy na najwyższym piętrze oferują prywatny dostęp na parterze, taras na pierwszym piętrze i solarium na dachu, a także przydzielone miejsce parkingowe.
Opcjonalne dodatki obejmują prywatne baseny na tarasach na parterze lub jacuzzi na solarium.
Wysokiej jakości specyfikacje
Każda nieruchomość obejmuje
Wzmocnione drzwi wejściowe
Instalacja przygotowana do montażu klimatyzacji kanałowej
Kompletne łazienki z meblami, lustrem i kabinami prysznicowymi
Przestrzenie zewnętrzne przeznaczone do grillowania, pergoli i stref relaksu
Ta społeczność mieszkaniowa oferuje bezpieczne, przyjazne rodzinom i ugruntowane środowisko, w odległości spacerowej od supermarketów, szkół, placówek medycznych, parków i plaży.
Doskonała lokalizacja w Puerto de Mazarrón
Odległości do najważniejszych punktów
Playa Negra 0,2 km
Marina Mazarrón 2 km
Centrum handlowe Mazarrón Park 5 km
Kartagena 35 km
Murcja 70 km
Lotnisko Murcia Corvera 45 km
Pola golfowe Camposol i Hacienda del Álamo 25–35 km
Ciesz się sportami wodnymi, wędrówkami i jazdą na rowerze w pobliskiej Sierra de las Moreras i odkryj najlepsze strony stylu życia Costa Cálida.
Nie przegap okazji, aby zapewnić sobie nową nieruchomość zaledwie kilka kroków od plaży w Puerto de Mazarrón. Skontaktuj się z nami już dziś, aby uzyskać informacje o dostępności, szczegóły i umówić się na oglądanie nieruchomości.