Deze moderne, nieuw gebouwde vrijstaande villa is gelegen in Sector 3, Dolores , een rustige woonwijk in het hart van Vega Baja del Segura . De villa biedt een eigentijds ontwerp, een royale buitenruimte en uitstekende verbindingen met de Costa Blanca.
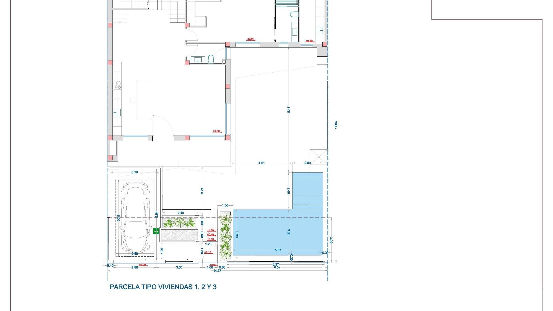
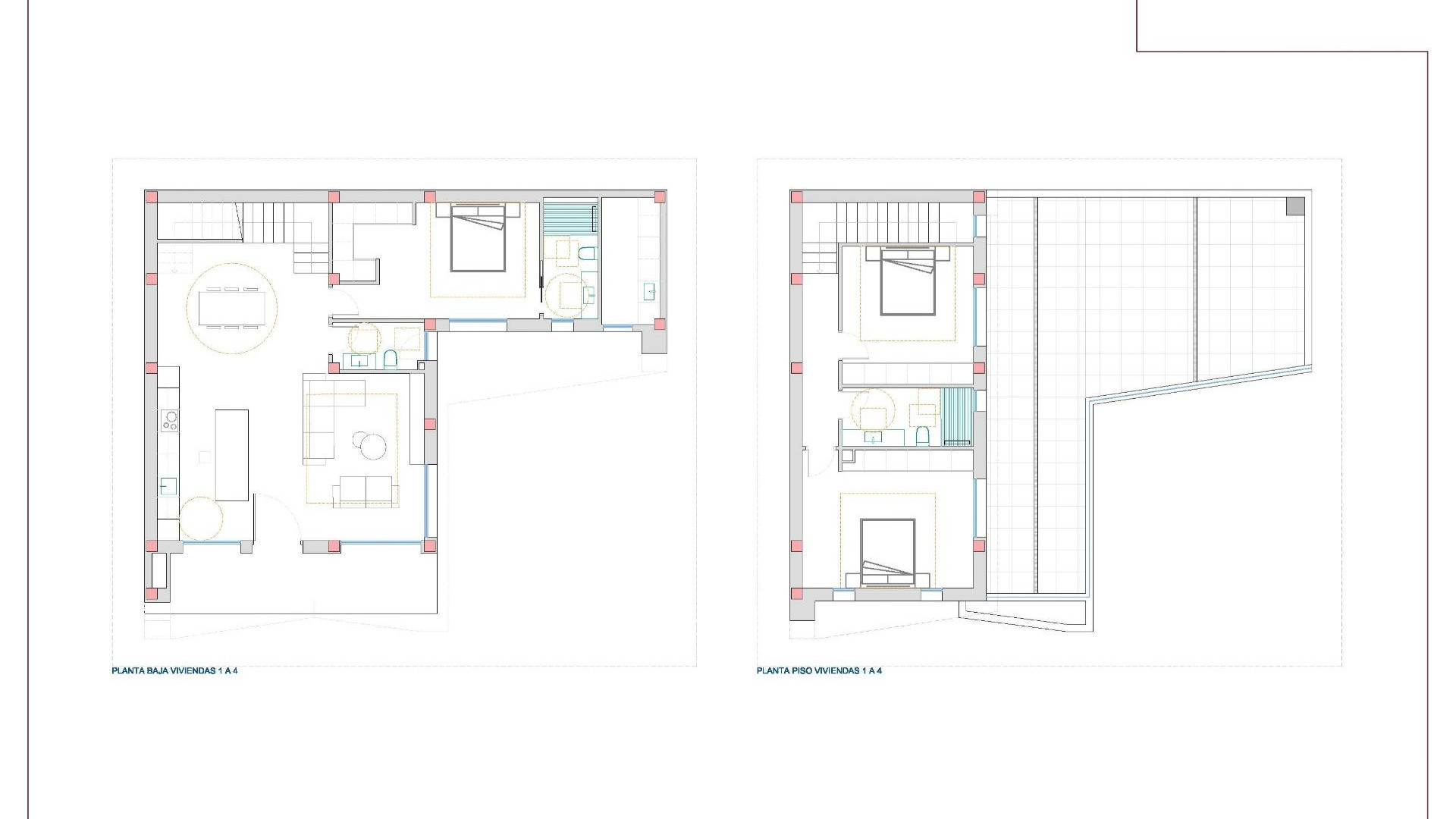
Deze elegante villa, ontworpen over twee verdiepingen, combineert strakke architectonische lijnen met praktische woonruimtes. De begane grond beschikt over een lichte, open keuken en woon-eetkamer met grote schuifdeuren die direct toegang bieden tot het terras, de tuin en het privézwembad – ideaal om zowel binnen als buiten te genieten van het mediterrane leven.
Op de begane grond bevindt zich tevens een tweepersoonsslaapkamer met een eigen badkamer, een gastentoilet en een aparte bijkeuken. Boven zijn nog twee tweepersoonsslaapkamers die een moderne badkamer delen en toegang bieden tot een ruim open terras, ideaal om te ontspannen of gasten te ontvangen. Een privésolarium biedt extra buitenruimte om het hele jaar door van de zon te genieten.
Elke villa beschikt over een eigen parkeerplaats op het perceel en is ontworpen om optimaal te profiteren van natuurlijk licht en comfort.
Dolores is een charmant Spaans dorp dat bekend staat om zijn traditionele sfeer, vriendelijke gemeenschap en uitstekende voorzieningen. Supermarkten, winkels, cafés, restaurants, scholen en andere lokale voorzieningen liggen allemaal op loopafstand, waardoor het een ideale plek is om permanent te wonen.
Omgeven door een open landschap en met goede verbindingen biedt Dolores een rustige levensstijl, terwijl de kust toch dichtbij is. De prachtige zandstranden van La Marina en Guardamar del Segura liggen op slechts 12 km afstand en staan bekend om hun duinen, dennenbossen en lange promenades. Verschillende golfbanen liggen op korte rijafstand en de stad Alicante is gemakkelijk te bereiken.
Dankzij de snelle toegang tot de snelweg AP-7 is de luchthaven van Alicante in ongeveer 25 minuten te bereiken, waardoor deze locatie ideaal is voor zowel bewoners als vakantiegangers.
Deze nieuwbouwvilla in Dolores biedt de perfecte combinatie van modern comfort, buitenleven en een ontspannen Spaanse levensstijl, dicht bij stranden, luchthavens en alle essentiële voorzieningen.