Cette villa individuelle moderne et neuve est située dans le secteur 3 de Dolores , un quartier résidentiel calme au cœur de Vega Baja del Segura . Elle offre un design contemporain, de vastes espaces extérieurs et un accès privilégié à la Costa Blanca.
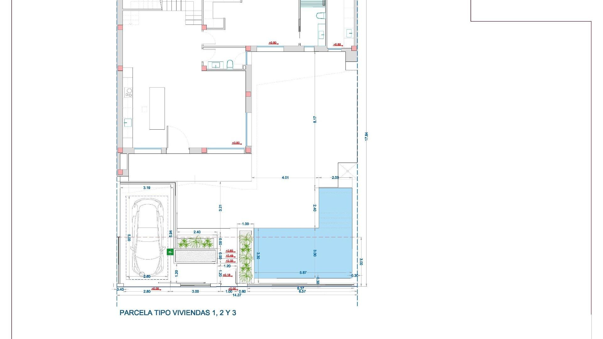
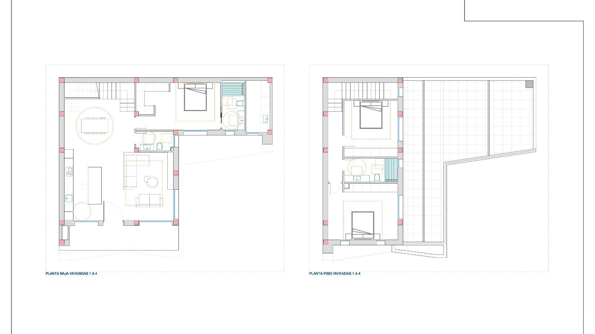
Cette élégante villa de deux étages allie des lignes architecturales épurées à des espaces de vie fonctionnels. Le rez-de-chaussée abrite une cuisine ouverte et lumineuse, un séjour/salle à manger attenant et de larges baies vitrées coulissantes donnant directement sur la terrasse, le jardin et la piscine privée – un cadre idéal pour profiter pleinement du style de vie méditerranéen, aussi bien à l'intérieur qu'à l'extérieur.
Le rez-de-chaussée comprend une chambre double avec salle de bains privative, des toilettes invités et une buanderie séparée. À l'étage, deux autres chambres doubles partagent une salle de bains moderne et donnent accès à une vaste terrasse ouverte, idéale pour se détendre ou recevoir. Un solarium privé offre un espace extérieur supplémentaire pour profiter du soleil toute l'année.
Chaque villa dispose de sa propre place de parking sur la propriété et est conçue pour optimiser l'utilisation de la lumière naturelle et le confort.
Dolores est un charmant village espagnol, réputé pour son cachet traditionnel, sa population accueillante et ses excellentes infrastructures. Supermarchés, commerces, cafés, restaurants, écoles et autres commodités sont facilement accessibles à pied, ce qui en fait un lieu de vie idéal.
Entourée de campagne et bien desservie par les transports, Dolores offre un cadre de vie côtier paisible. Les magnifiques plages de sable fin de La Marina et de Guardamar del Segura , réputées pour leurs dunes, leurs pinèdes et leurs longues promenades, se trouvent à seulement 12 km . Plusieurs terrains de golf sont facilement accessibles en voiture, et la ville d'Alicante est également très proche.
Grâce à la connexion rapide avec l' autoroute AP-7, l'aéroport d'Alicante est accessible en environ 25 minutes , ce qui rend cet emplacement idéal pour les locaux et les touristes.
Cette villa neuve à Dolores offre la combinaison parfaite de confort moderne, de vie en plein air et d'un style de vie espagnol décontracté, à proximité des plages, des aéroports et de toutes les commodités essentielles.