Esta moderna villa independiente de nueva construcción se encuentra en el Sector 3, Dolores , una tranquila zona residencial en el corazón de la Vega Baja del Segura , que ofrece un diseño contemporáneo, un generoso espacio al aire libre y excelentes conexiones con la costa de la Costa Blanca.
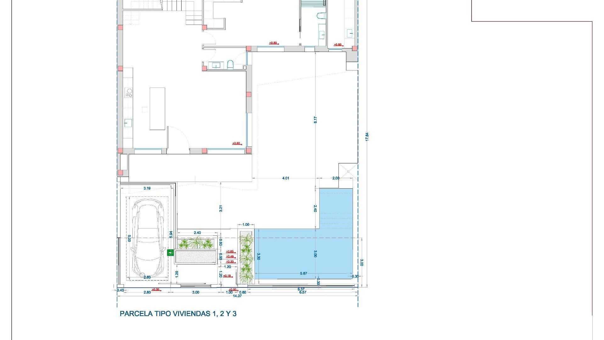
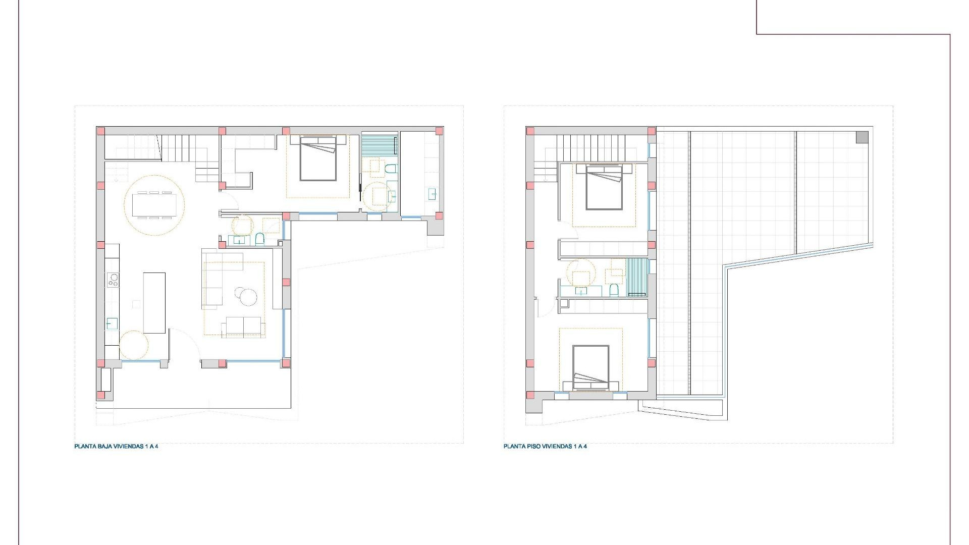
Diseñada en dos niveles, esta elegante villa combina líneas arquitectónicas limpias con prácticos espacios habitables. La planta baja cuenta con una luminosa cocina abierta y un salón-comedor, con grandes puertas correderas que dan directamente a la terraza, el jardín y la piscina privada, ideal para disfrutar de una vida mediterránea interior y exterior.
También en la planta baja hay un dormitorio doble con baño en suite, un aseo de invitados y un lavadero independiente. En la planta superior, dos dormitorios dobles más comparten un baño moderno y tienen acceso a una amplia terraza abierta, ideal para relajarse o entretenerse. Un solárium privado ofrece espacio exterior adicional para disfrutar del sol todo el año.
Cada villa incluye aparcamiento privado dentro de la parcela y ha sido diseñada para maximizar la luz natural y la comodidad.
Dolores es un encantador pueblo español conocido por su ambiente tradicional, su comunidad amigable y sus excelentes servicios diarios. Supermercados, tiendas, cafeterías, restaurantes, escuelas y servicios locales se encuentran a poca distancia, lo que lo convierte en un lugar ideal para vivir de forma permanente.
Rodeada de campo abierto y bien comunicada, Dolores ofrece un estilo de vida tranquilo a la vez que se mantiene cerca de la costa. Las hermosas playas de arena de La Marina y Guardamar del Segura están a solo 12 km , famosas por sus dunas, pinares y largos paseos marítimos. Hay varios campos de golf a poca distancia en coche y la ciudad de Alicante es fácilmente accesible.
Con rápido acceso a la autopista AP-7 , el Aeropuerto de Alicante se puede llegar en aproximadamente 25 minutos , lo que hace que esta ubicación sea ideal tanto para residentes como para propietarios de vacaciones.
Esta villa de nueva construcción en Dolores ofrece la combinación perfecta de comodidad moderna, vida al aire libre y un estilo de vida español relajado, cerca de playas, aeropuertos y todos los servicios esenciales.