Эта современная отдельно стоящая вилла, построенная в 2018 году и расположенная на просторном участке площадью 464 м² , предлагает элегантную интерпретацию средиземноморского стиля жизни в популярном районе Вильямартин на побережье Коста-Ориуэла . Четкие архитектурные линии, высококачественная отделка и продуманная планировка характеризуют этот объект недвижимости, предлагая идеальный баланс между комфортом и стилем. Южная ориентация обеспечивает обилие естественного света в течение дня, способствуя созданию теплой и уютной атмосферы дома.
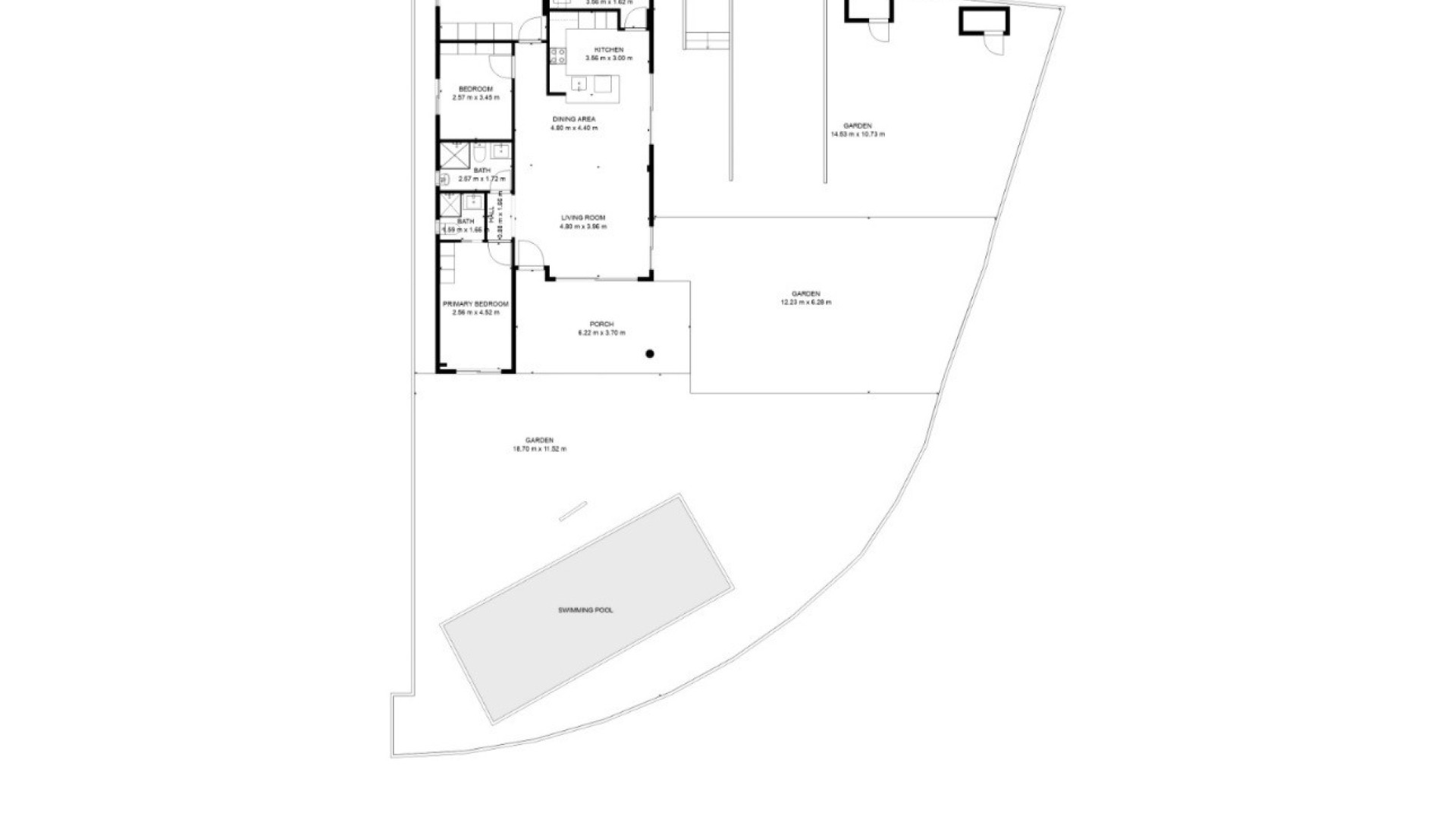
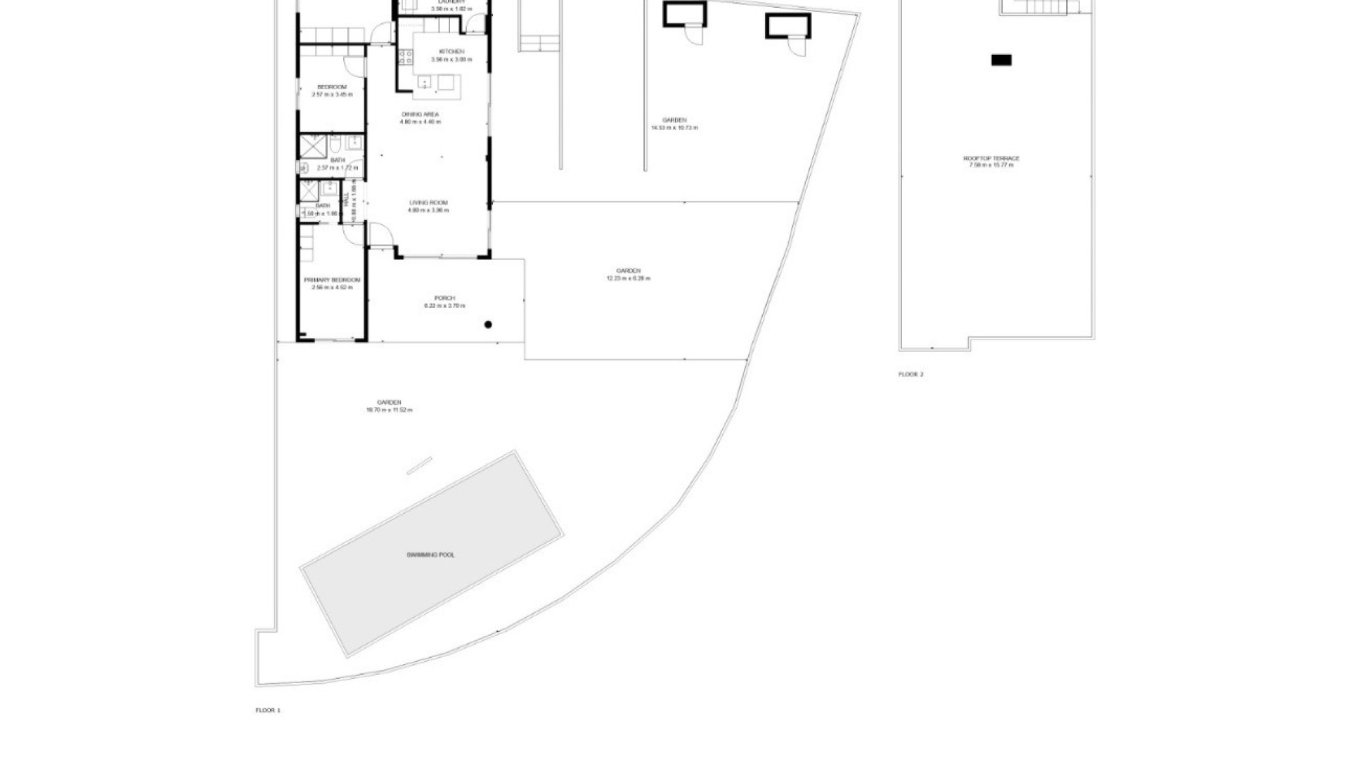
Вилла предлагает 113 м² жилой площади , разделенной на три просторные спальни со встроенными шкафами и две современные ванные комнаты , включая элегантную ванную комнату в номере. Кухня открытой планировки плавно переходит в обеденную и гостиную зоны, создавая светлое и просторное пространство с прямым выходом на террасу и к частному бассейну . Отдельная прачечная обеспечивает дополнительное место для хранения, не нарушая минималистичный дизайн.
Главная особенность этого объекта недвижимости — возможность наслаждаться отдыхом на свежем воздухе. К услугам гостей частный бассейн , благоустроенный сад, крытая терраса, идеально подходящая для обедов на открытом воздухе , а также обеденная зона с перголой и искусственной травой. Просторная терраса на крыше предлагает дополнительное пространство для отдыха и расслабления, обеспечивая уединение и потрясающие виды. На территории имеется крытая парковка.
Среди других особенностей виллы — центральное кондиционирование воздуха , солнечные батареи и тщательно подобранные материалы. Расположенная в тихом жилом районе, она находится недалеко от известных полей для гольфа , торгового центра Zenia Boulevard и эксклюзивных пляжей Ориуэла-Коста .
Эта вилла предлагает уникальную возможность для постоянного проживания или надежной инвестиции , сочетая в себе современный дизайн, отдых на свежем воздухе и превосходное расположение на побережье Коста-Бланка.