Discover this stunning new build villa in Las Colinas Golf & Country Club, Orihuela Costa, offering an exclusive Mediterranean lifestyle. Surrounded by lush landscapes and Mediterranean forest, this villa combines modern design, premium finishes, and resort-style amenities.
Key Features:
This modern villa in Las Colinas Golf & Country Club is designed across two floors plus a basement, ensuring spacious, functional living. The ground floor features an open-plan kitchen and living room, two bedrooms, and access to a large terrace with private swimming pool and garden.
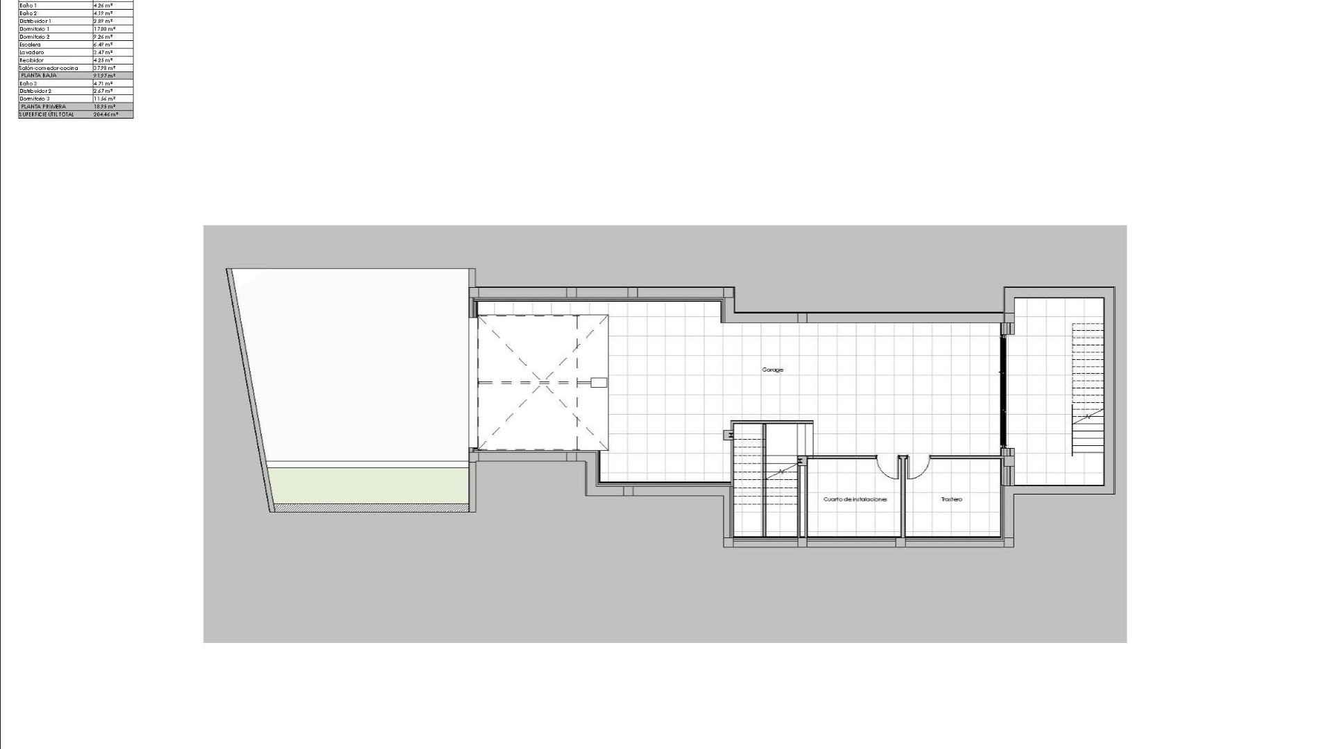
The first floor hosts a private bedroom suite, while the basement includes a double garage with natural light and ventilation via an English patio. Built to the highest standards, the villa includes premium appliances, fully furnished bathrooms, ducted air conditioning, aerothermal heating, and integrated home automation, offering comfort, efficiency, and luxury at every turn.
Las Colinas Golf & Country Club is one of the most prestigious resorts in Orihuela Costa. Nestled in a 330-hectare valley with Mediterranean forest and green areas, residents enjoy privacy, exclusivity, and natural beauty.
The resort features an 18-hole championship golf course, tennis and padel courts, a modern gym, wellness and massage facilities, gourmet restaurants, and a minimarket with fresh daily bread. Residents can enjoy walking trails, orange and lemon groves, and Mediterranean beaches just a short drive away.
Las Colinas is 40 km from Alicante Airport and 60 km from Murcia–Corvera Airport, providing excellent connectivity while maintaining an exclusive, tranquil environment.
Secure your exclusive new build villa in Las Colinas Golf & Country Club. Contact us today to arrange a private viewing and experience the ultimate luxury lifestyle in Orihuela Costa.