Ciesz się wyjątkowym, nadmorskim stylem życia w tej zachwycającej, nowoczesnej willi w stylu śródziemnomorskim, zaledwie 150 metrów od plaży La Fustera w niezwykle pożądanej Benissa Costa . Zaprojektowany przez renomowanego architekta i wybudowany przez doświadczonego lokalnego dewelopera, ten ekskluzywny, nowy dom oferuje wyrafinowane wnętrza, wysokiej klasy wykończenia i zapierające dech w piersiach panoramiczne widoki na morze z kilku pięter.
4 sypialnie dwuosobowe
3 łazienki + toaleta dla gości
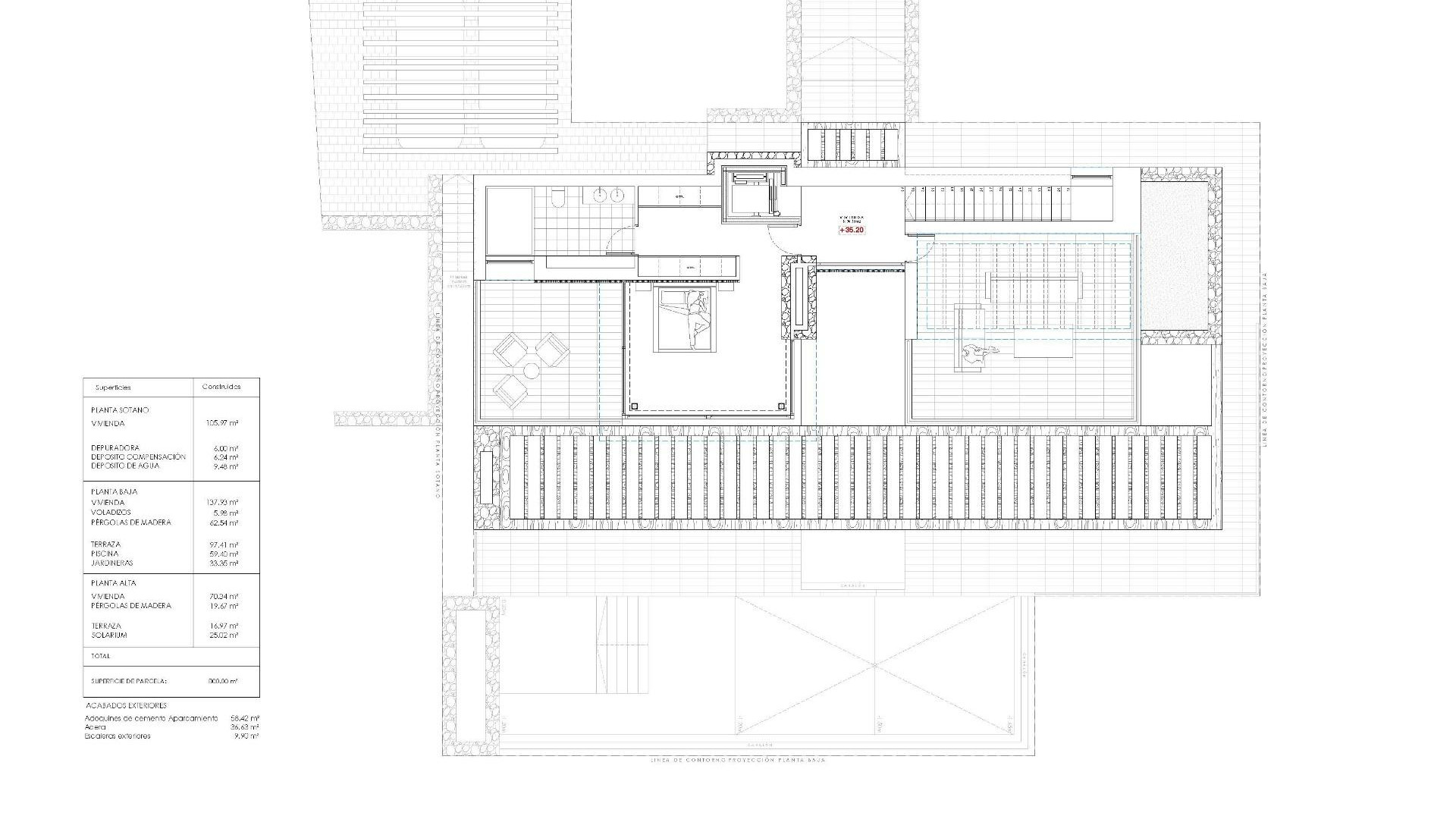
Basen bez krawędzi z panoramicznym widokiem na morze
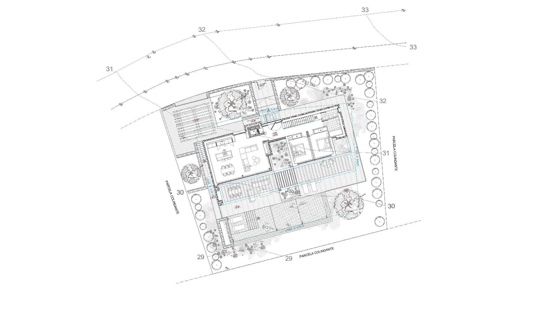
Działka o powierzchni 800 m² z zagospodarowanym ogrodem
otwarte i jasne przestrzenie mieszkalne
Przestronne tarasy i prywatne solarium
W pełni wyposażona siłownia domowa
Uniwersalna podłoga w piwnicy
Miejsce parkingowe dla dwóch pojazdów
Zamknięte osiedle blisko plaży z dobrą infrastrukturą.
Ta nowoczesna willa w La Fustera łączy elegancką architekturę z naturalnym pięknem śródziemnomorskiego wybrzeża. Duże okna, detale z naturalnego kamienia i ciepłe drewniane elementy tworzą płynne przejście między wnętrzem a zewnętrzem, jednocześnie maksymalizując spektakularne widoki na morze.
Parter oferuje przestronną, otwartą przestrzeń dzienną, obejmującą salon, jadalnię i kuchnię, z bezpośrednim dostępem do dużego tarasu z basenem bez krawędzi, który idealnie wtapia się w morski krajobraz. Dwie sypialnie dwuosobowe i elegancka łazienka dopełniają ten poziom, zapewniając komfort i wygodę rodzinie i gościom.
Na piętrze znajduje się imponujący apartament główny z garderobą, luksusową łazienką i dużym, prywatnym tarasem z zapierającym dech w piersiach widokiem na morze. Dodatkowa sypialnia lub gabinet zapewniają przestrzeń do pracy zdalnej lub przyjmowania gości i otwierają się na zaciszny taras o powierzchni 25 m².
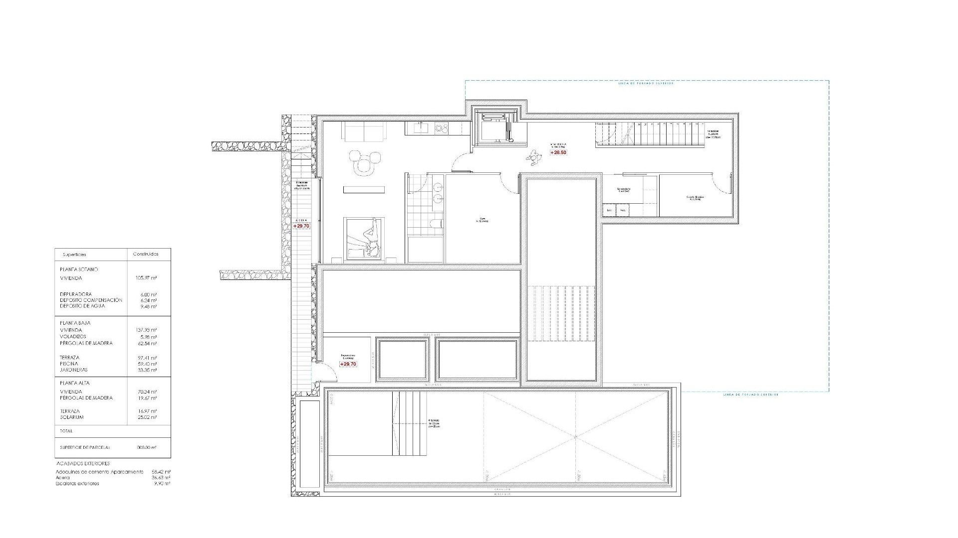
W piwnicy znajduje się w pełni wyposażona siłownia, pralnia oraz funkcjonalna przestrzeń, którą można wykorzystać jako kino domowe, piwniczkę na wino lub wielofunkcyjny pokój rozrywki. Każdy detal tej willi został starannie zaprojektowany, aby zapewnić styl życia, który jest jednocześnie wyrafinowany i relaksujący.
Willa położona jest przy spokojnej ulicy mieszkalnej, w otoczeniu nowoczesnych domów. Z willi roztacza się bezpośredni dostęp do plaży La Fustera, popularnego baru Mandala Beach Bar, lokalnych supermarketów, kawiarni i malowniczych nadmorskich ścieżek.
Benissa Costa słynie z krystalicznie czystych zatoczek, relaksującej śródziemnomorskiej atmosfery i pięknych szlaków turystycznych. Pobliskie miejscowości, takie jak Calpe i Moraira, oferują doskonałe restauracje, sklepy i bogactwo atrakcji rekreacyjnych. Dzięki doskonałym połączeniom komunikacyjnym, lotniska w Alicante i Walencji są łatwo dostępne, co czyni ten region idealnym miejscem na osiedlenie się lub luksusowe wakacje.
Piwnica z pomieszczeniem technicznym i instalacjami wodnymi.
Wysokiej jakości materiały i nowoczesne powierzchnie.
Energooszczędne budownictwo z nowoczesnym wyposażeniem
Opcje personalizacji (kino, piwniczka na wino, pokój rozrywki)