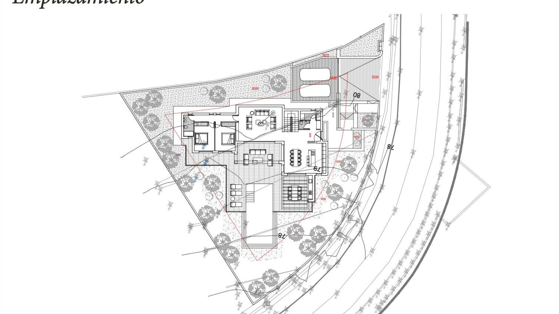
Luxe villa in Ibizaanse stijl in La Fustera (Benissa Costa) Op slechts 1 km van het strand Mediterrane oase aan de noordelijke Costa Blanca Deze exclusieve collectie van vier eengezinsvilla's is gelegen in La Fustera, een prestigieuze woonwijk van Benissa aan de noordelijke Costa Blanca. Deze woningen combineren de charme van de Ibiza-architectuur met hedendaagse mediterrane elegantie en bieden privacy, uitzicht op zee en een verfijnde levensstijl in een van de meest gewilde kustenclaves van de regio. La Fustera staat bekend om zijn kristalheldere baaien, natuurlijke omgeving en rustige woonomgeving. De villa's liggen op slechts 1 km van het strand van La Fustera, waardoor u gemakkelijk toegang heeft tot een van de mooiste stranden in de omgeving, met restaurants aan het strand en schilderachtige wandelpaden langs de kustlijn. Toplocatie dicht bij Calpe en Moraira Het project ligt op een strategische locatie, op slechts 10 minuten rijden van Calpe, Moraira en het centrum van Benissa, met toegang tot supermarkten, jachthavens, golfbanen, internationale scholen en medische voorzieningen. De omgeving combineert rust met uitstekende verbindingen naar de belangrijkste bestemmingen van de Costa Blanca. Moderne indeling met uitzicht op zee en infinity pool Deze villa is verdeeld over twee verdiepingen op een royaal perceel van 876 m2 met dubbele privéparkeerplaats. De begane grond beschikt over twee slaapkamers die een badkamer delen, een gastentoilet met wasruimte en een lichte woonkamer met open keuken. Grote schuifdeuren verbinden het interieur met een ruim terras en een privé-infinitypool met uitzicht op zee. Op de bovenverdieping beschikt de hoofdslaapkamer over een en suite badkamer, een kleedkamer en toegang tot een indrukwekkend open terras van 54 m2 met panoramisch uitzicht op zee. Ibizan Design en hoogwaardige afwerking Geïnspireerd door de strakke lijnen en natuurlijke materialen van Ibiza, combineert de architectuur kubistische volumes, hout en steen om warme en tijdloze ruimtes te creëren. Grote ramen maximaliseren het natuurlijke licht en creëren een naadloze overgang tussen binnen en buiten. De villa's worden opgeleverd met hoogwaardige specificaties, waaronder: Volledig ingerichte keuken met apparatuur Design badkamers met meubilair Elektrische jaloezieën Video-intercom en alarmsysteem Aerothermisch systeem voor warm water en vloerverwarming Volledig geïnstalleerde airconditioning Afstanden tot belangrijke bezienswaardigheden La Fustera-strand 1 km Calpe 7 km Moraira 8 km Ifach Golf Club 6 km Luchthaven Alicante 80 km Luchthaven Valencia 110 km Ervaar de essentie van het mediterrane leven Als u op zoek bent naar een moderne villa waar design, comfort en natuur in perfecte harmonie samenkomen, dan is dit uw kans. Neem vandaag nog contact met ons op voor meer informatie of om een privébezichtiging te regelen van deze exclusieve villa's in La Fustera, Benissa Costa. 490