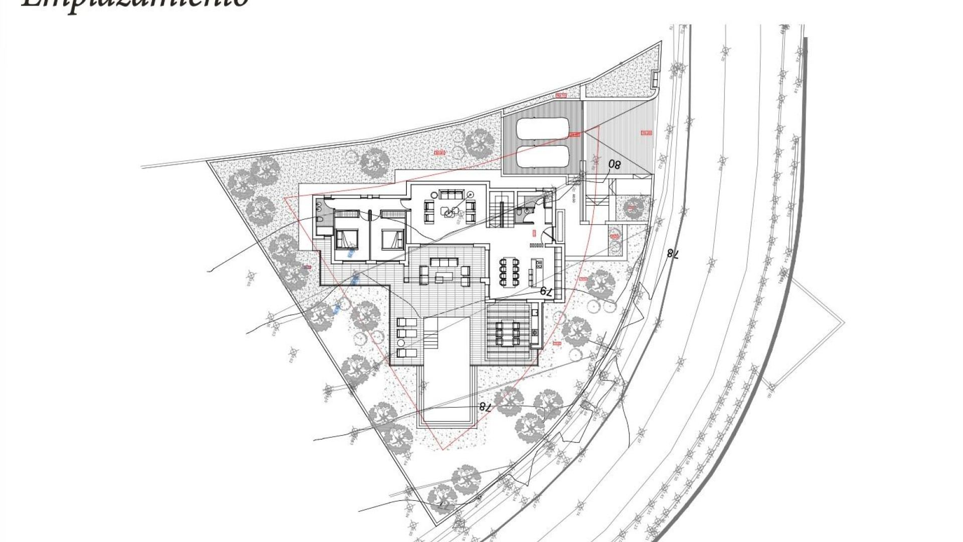
Villa de lujo de estilo ibicenco en La Fustera (Benissa Costa) A solo 1 km de la playa Refugio mediterráneo en la Costa Blanca Norte Esta exclusiva colección de cuatro villas unifamiliares se encuentra en La Fustera, una prestigiosa zona residencial de Benissa, en el norte de la Costa Blanca. Combinando el encanto de la arquitectura ibicenca con la elegancia mediterránea contemporánea, estas viviendas ofrecen privacidad, vistas al mar y un estilo de vida refinado en uno de los enclaves costeros más deseables de la región. La Fustera es conocida por sus calas de aguas cristalinas, su entorno natural y su ambiente residencial de baja densidad. Las villas se encuentran a solo 1 km de la playa de La Fustera, lo que permite un fácil acceso a una de las playas más bonitas de la zona, con restaurantes frente al mar y pintorescos senderos para pasear por la costa. Ubicación privilegiada cerca de Calpe y Moraira La urbanización goza de una posición estratégica a solo 10 minutos en coche de Calpe, Moraira y el centro de Benissa, lo que permite acceder a supermercados, puertos deportivos, campos de golf, colegios internacionales y servicios médicos. La zona combina la tranquilidad con una excelente conectividad con los principales destinos de la Costa Blanca. Diseño moderno con vistas al mar y piscina infinita Esta villa se distribuye en dos niveles en una generosa parcela de 876 m2 con doble aparcamiento privado. La planta baja cuenta con dos dormitorios que comparten un cuarto de baño, un aseo de invitados con zona de lavandería y un luminoso salón con cocina abierta. Grandes puertas correderas conectan el interior con una amplia terraza y una piscina infinita privada con vistas al mar. En la planta superior, el dormitorio principal incluye un cuarto de baño en suite, un vestidor y acceso a una impresionante terraza abierta de 54 m2 con vistas panorámicas al mar. Diseño ibicenco y acabados de alta calidad Inspirada en las líneas limpias y los materiales naturales de Ibiza, la arquitectura combina volúmenes cúbicos, madera y piedra para crear espacios cálidos y atemporales. Los grandes ventanales maximizan la luz natural y crean una fluidez perfecta entre la vida interior y exterior. Las villas se entregan con especificaciones de primera calidad, entre las que se incluyen: Cocina totalmente equipada con electrodomésticos Baños de diseño con muebles Persianas eléctricas Videoportero y sistema de alarma Sistema aerotérmico para agua caliente y calefacción por suelo radiante Aire acondicionado por conductos totalmente instalado Distancias a puntos de interés clave Playa de La Fustera 1 km Calpe a 7 km Moraira a 8 km Club de golf Ifach a 6 km Aeropuerto de Alicante a 80 km Aeropuerto de Valencia a 110 km Experimente la esencia de la vida mediterránea Si busca una villa contemporánea donde el diseño, el confort y la naturaleza se unen en perfecta armonía, esta es su oportunidad. Póngase en contacto con nosotros hoy mismo para recibir más información o concertar una visita privada a estas exclusivas villas en La Fustera, Benissa Costa. 490