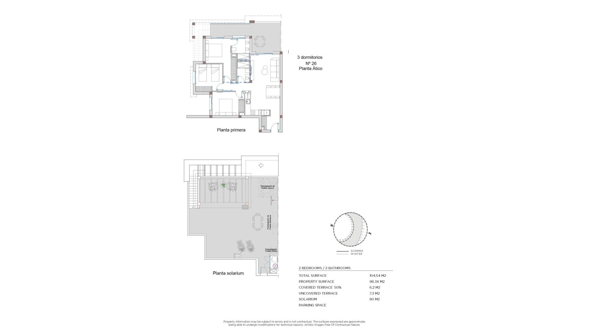
Appartements méditerranéens modernes à Ciudad Quesada, Costa Blanca Un cadre de vie résidentiel exclusif Découvrez un complexe résidentiel privé exclusif conçu pour offrir un maximum de confort, de qualité et de style de vie dans l'un des endroits les plus prisés de la Costa Blanca. Situé à Ciudad Quesada, à quelques minutes de l'aéroport international d'Alicante, ce complexe moderne allie le charme intemporel de l'architecture méditerranéenne à un design frais et fonctionnel, idéal pour la vie contemporaine. Des appartements élégants avec des espaces extérieurs privés Le complexe propose deux types de logements adaptés à différents styles de vie. Vous avez le choix entre des appartements au rez-de-chaussée avec un grand jardin privé, parfaits pour se détendre en plein air, ou des appartements au premier étage avec un grand solarium privé, idéaux pour profiter du soleil toute l'année et d'une vue paisible. Chaque appartement comprend 2-3 chambres et 2 salles de bains, offrant des intérieurs lumineux et confortables. De plus, chaque logement dispose d'un parking privé au sein du complexe et d'un débarras pour plus de commodité. Espaces communs pour la détente et le bien-être Conçu pour le plaisir et la détente, le complexe résidentiel offre de magnifiques jardins communs paysagers et une grande piscine qui créent une atmosphère sereine et exclusive. Que vous souhaitiez vous détendre au soleil, vous rafraîchir dans la piscine ou simplement profiter de la nature environnante, ce complexe vous offre tout ce dont vous avez besoin pour vivre confortablement sur la Costa Blanca. Emplacement privilégié à proximité des plages et des terrains de golf Ciudad Quesada est une communauté bien établie et dynamique, réputée pour ses excellents services, ses restaurants et ses possibilités de loisirs. Le terrain de golf La Marquesa, situé à quelques minutes seulement, est l'un des terrains de golf les plus historiques de la Costa Blanca. Il compte 18 trous et le célèbre trou 17 inspiré de Sawgrass, offrant une expérience unique aux amateurs de golf. Les magnifiques plages Pavillon bleu de Guardamar del Segura, La Mata et Torrevieja se trouvent à seulement 15 km du complexe, parfaites pour prendre un bain de soleil ou pratiquer des sports nautiques. L'aéroport international d'Alicante est idéalement situé à 40 km, ce qui facilite les déplacements. Le meilleur du style de vie méditerranéen Entouré par la nature, les terrains de golf et la mer, ce projet résidentiel offre un cadre idéal pour vivre à l'année ou passer des vacances agréables. C'est un endroit où le confort moderne rencontre le charme du mode de vie méditerranéen. Planifiez votre visite dès aujourd'hui Ne manquez pas l'occasion d'acquérir votre nouvelle maison à Ciudad Quesada, sur la Costa Blanca. Contactez-nous dès aujourd'hui pour obtenir plus d'informations ou pour organiser une visite privée de ces appartements neufs exceptionnels.