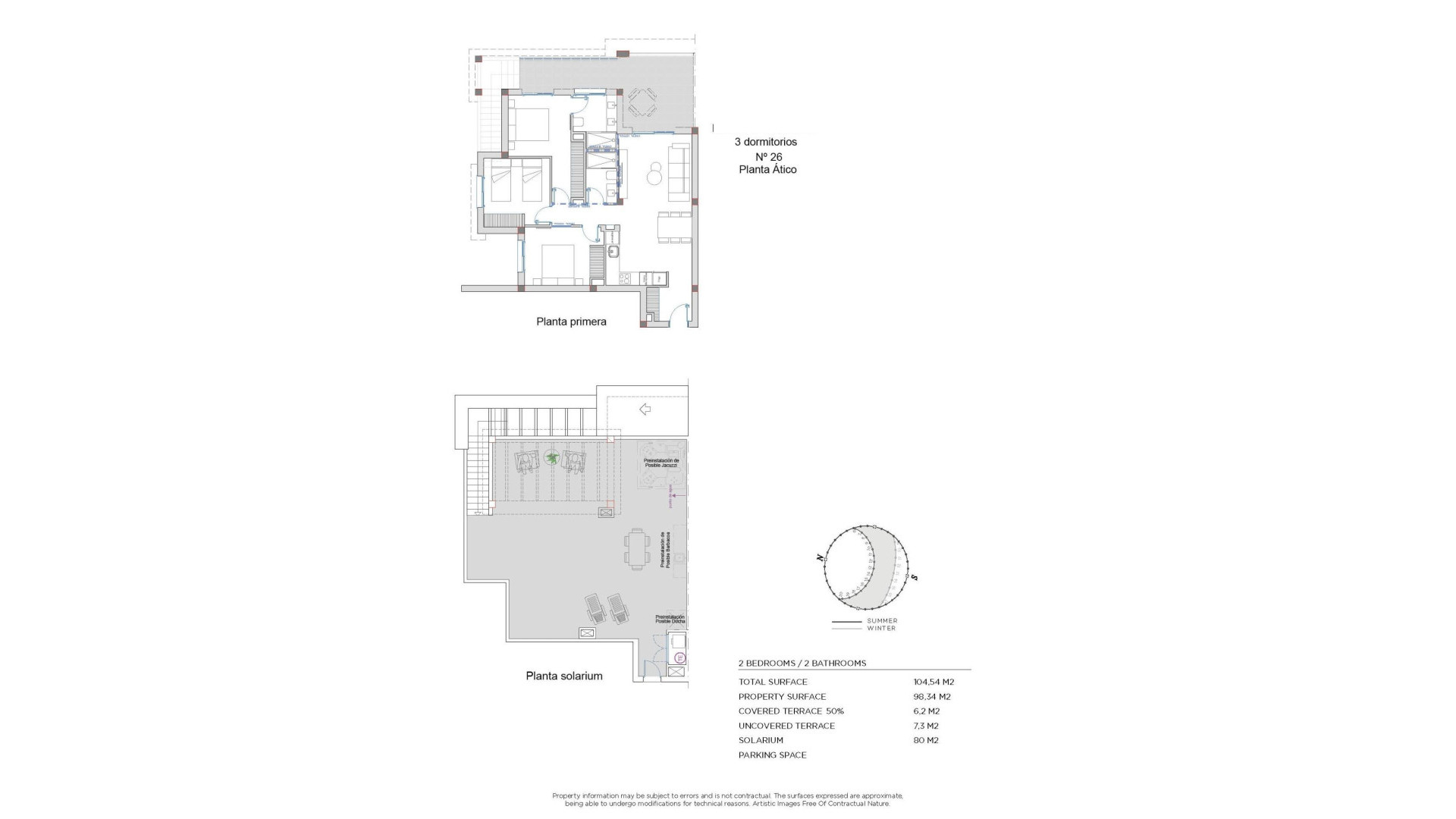
Apartamentos modernos de estilo mediterráneo en Ciudad Quesada, Costa Blanca Vida residencial exclusiva Descubra un exclusivo complejo residencial privado diseñado para ofrecer el máximo confort, calidad y estilo de vida en una de las ubicaciones más codiciadas de la Costa Blanca. Situado en Ciudad Quesada, a pocos minutos del aeropuerto internacional de Alicante, este moderno complejo combina el encanto atemporal de la arquitectura mediterránea con un diseño fresco y funcional, ideal para la vida contemporánea. Elegantes apartamentos con espacios exteriores privados El complejo cuenta con dos tipos de viviendas que se adaptan a diferentes estilos de vida. Elija entre apartamentos en planta baja con un amplio jardín privado, perfecto para relajarse al aire libre, o apartamentos en primera planta con un gran solárium privado, ideal para disfrutar del sol durante todo el año y de unas vistas tranquilas. Cada apartamento cuenta con 2 o 3 dormitorios y 2 baños, y ofrece interiores luminosos y confortables. Además, todas las viviendas disponen de aparcamiento privado dentro del complejo y un trastero para mayor comodidad. Espacios comunitarios para el relax y el bienestar Diseñado para el disfrute y el relax, el complejo residencial ofrece hermosos jardines comunitarios y una gran piscina que crean un ambiente sereno y exclusivo. Tanto si desea relajarse bajo el sol, darse un refrescante baño o simplemente disfrutar del entorno natural, esta promoción le ofrece todo lo que necesita para vivir cómodamente en la Costa Blanca. Ubicación privilegiada cerca de playas y campos de golf Ciudad Quesada es una comunidad bien establecida y vibrante, conocida por sus excelentes servicios, restaurantes y opciones de ocio. El campo de golf La Marquesa, situado a pocos minutos, es uno de los campos de golf más históricos de la Costa Blanca, con 18 hoyos y el famoso hoyo 17 inspirado en Sawgrass, que ofrece una experiencia única para los amantes del golf. Las hermosas playas con bandera azul de Guardamar del Segura, La Mata y Torrevieja están a solo 15 km de la urbanización, perfectas para tomar el sol o disfrutar de deportes acuáticos. El aeropuerto internacional de Alicante está convenientemente situado a 40 km, lo que facilita los desplazamientos. Lo mejor del estilo de vida mediterráneo Rodeado de naturaleza, campos de golf y el mar, este proyecto residencial ofrece el entorno perfecto tanto para vivir de forma permanente como para disfrutar de las vacaciones. Es un lugar donde el confort moderno se une al encanto del estilo de vida mediterráneo. Programe su visita hoy mismo No pierda la oportunidad de adquirir su nueva vivienda en Ciudad Quesada, Costa Blanca. Póngase en contacto con nosotros hoy mismo para obtener más información o concertar una visita privada a estos excepcionales apartamentos de nueva construcción.