Disfrute de una excepcional vida costera en esta impactante villa mediterránea moderna, ubicada a solo 150 metros de la playa de La Fustera, en la codiciada Benissa Costa . Diseñada por un reconocido arquitecto y construida por un experimentado promotor local, esta exclusiva propiedad de nueva construcción ofrece interiores refinados, acabados de primera calidad e impresionantes vistas panorámicas al mar desde varios niveles.
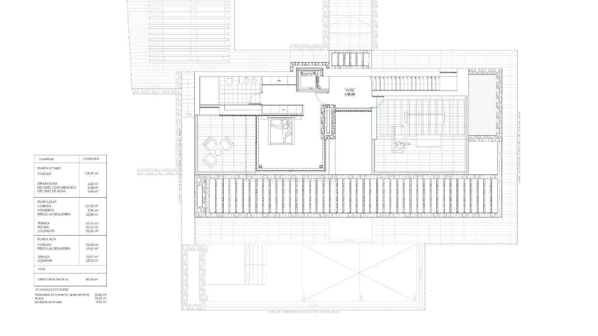
4 habitaciones dobles
3 baños + aseo de invitados
Piscina infinita con vistas panorámicas al mar
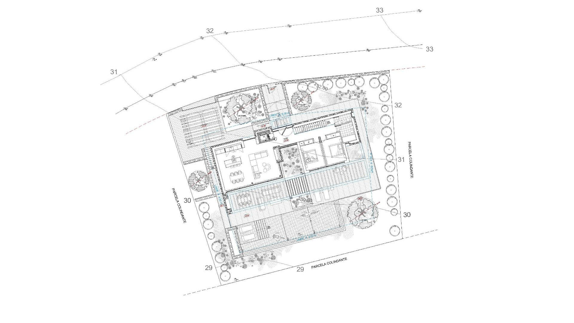
Parcela de 800 m² con jardines paisajísticos
Áreas de estar abiertas y luminosas
Amplias terrazas y solárium privado
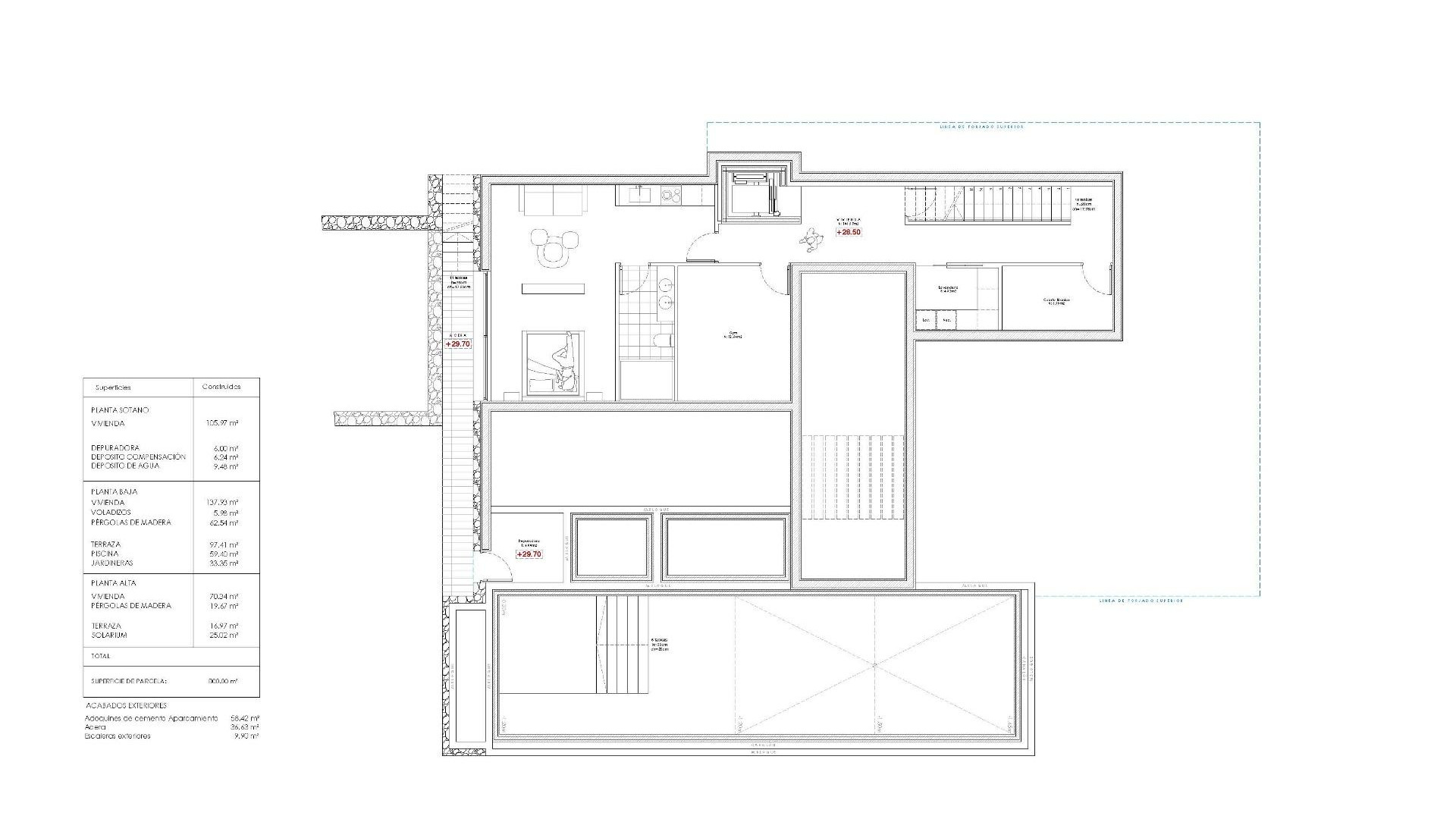
Gimnasio en casa totalmente equipado
Nivel de sótano versátil
Estacionamiento para dos vehículos
Entorno residencial cerrado cerca de la playa y servicios
Esta villa contemporánea en La Fustera combina un elegante diseño arquitectónico con la belleza natural de la costa mediterránea. Acristalamientos de suelo a techo, detalles de piedra natural y cálidos detalles en madera crean una fluidez perfecta entre el interior y el exterior, a la vez que maximizan las espectaculares vistas al mar.
La planta principal cuenta con un amplio salón de planta abierta, comedor y cocina de diseño, todo ello con acceso directo a una amplia terraza con piscina infinita que se funde visualmente con el horizonte del mar. Dos dormitorios dobles y un elegante baño completan esta planta, ofreciendo comodidad y practicidad para la familia y los invitados.
En la planta superior, la impresionante suite principal cuenta con vestidor, un lujoso baño en suite y una amplia terraza privada con impresionantes vistas a la costa. Un dormitorio o despacho adicional ofrece flexibilidad para teletrabajar o alojar a invitados y cuenta con acceso a un tranquilo solárium de 25 m².
El sótano incluye un gimnasio totalmente equipado, lavandería y un espacio adaptable ideal para una sala de cine, una bodega o un área de entretenimiento multiusos. Cada elemento de esta villa ha sido cuidadosamente diseñado para ofrecer un estilo de vida sofisticado y sin complicaciones.
Situada en una tranquila calle residencial rodeada de casas modernas, la villa disfruta de acceso inmediato a la playa de La Fustera, el popular Mandala Beach Bar, supermercados locales, cafeterías y pintorescas rutas de senderismo por la costa.
Benissa Costa es famosa por sus calas de aguas cristalinas, su relajado ambiente mediterráneo y sus hermosas rutas de senderismo. Las localidades cercanas, como Calpe y Moraira, ofrecen una excelente oferta gastronómica, comercial y de ocio. Sus excelentes conexiones de transporte permiten acceder fácilmente a los aeropuertos de Alicante y Valencia, lo que la convierte en un lugar ideal para vivir permanentemente o para unas vacaciones de lujo.
Sótano con sala técnica y sistemas de agua.
Materiales de alta calidad y acabados contemporáneos.
Construcción energéticamente eficiente con instalaciones modernas
Posibilidad de personalización (sala de cine, bodega, espacio de entretenimiento)