Rojales · Costa Blanca (Alicante) Ref: RM-55515 · Detached Villa · Sprzedaż

Rojales · Costa Blanca (Alicante) Ref: RM-55515 · Detached Villa · Sprzedaż

Szczegóły oferty

  • Ref Number RM-55515
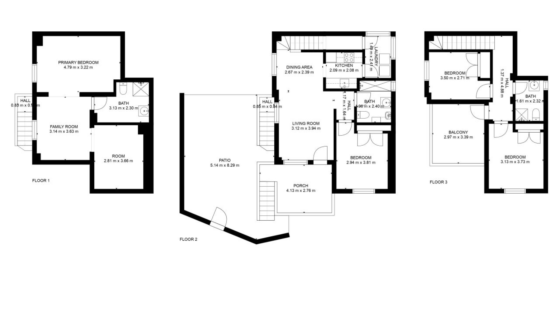
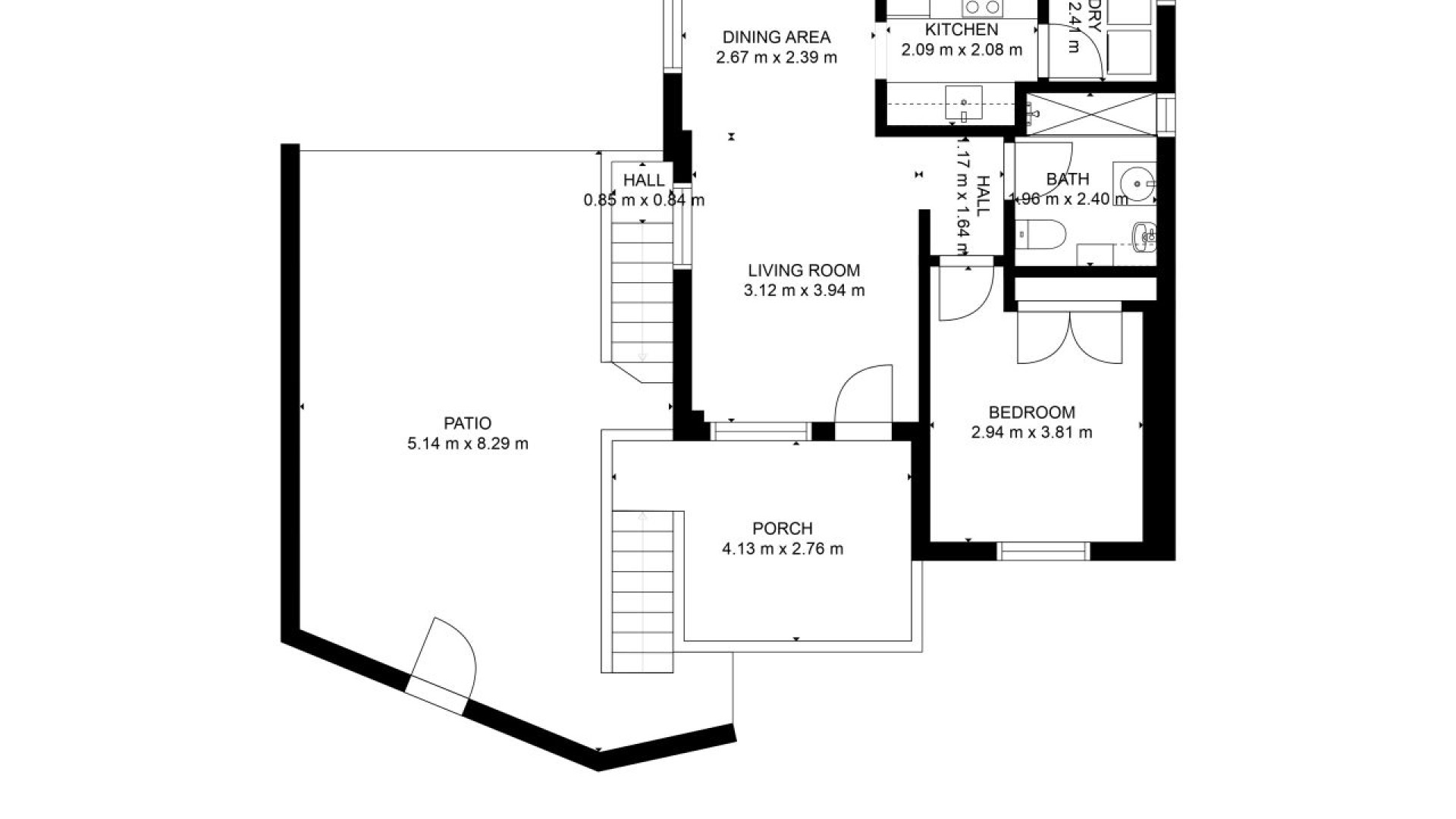
  • Powierzchnia 160m2
  • Parcela 150m2
  • Sypialnie 5
  • Łazienki 3
  • Basen Tak
Basen: Tak
tiled floor
built in 1999
mediterranean style
split system airco
fully fenced
closed kitchen
split system heating
split unit airco
basement
covered terrace
watersystem
Balcony
1 ensuite
1 utilityroom
3 Bathrooms
Terrace
5 Bedrooms
Community Pool
Air-Conditioning
facing northeast
staircase
partly furnished
off-road parking
coastal area
2 livings
2 kitchens
3 floors

Opis

Kontakt LISA FRAIN

Responsable del tratamiento: , Finalidad del tratamiento: Gestión y control de los servicios ofrecidos a través de la página Web de Servicios inmobiliarios, Envío de información a traves de newsletter y otros, Legitimación: Por consentimiento, Destinatarios: No se cederan los datos, salvo para elaborar contabilidad, Derechos de las personas interesadas: Acceder, rectificar y suprimir los datos, solicitar la portabilidad de los mismos, oponerse altratamiento y solicitar la limitación de éste, Procedencia de los datos: El Propio interesado, Información Adicional: Puede consultarse la información adicional y detallada sobre protección de datos Aquí.

Podobne nieruchomości

© 2026 Lisa Frain · Todos los derechos reservados · Nota prawna · Prywatność · Cookies · Mapa strony

Projekt & CRM: Mediaelx

WhatsApp