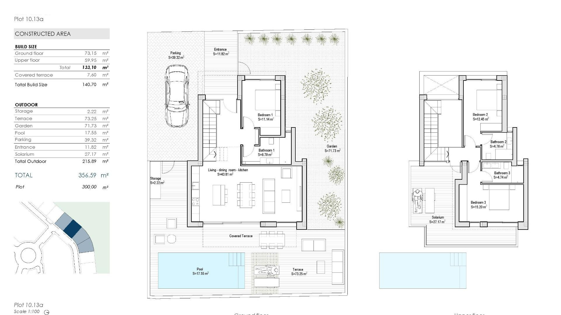
Nieuwbouwwoningen aan de frontlinie van Roda Golf met privézwembad Exclusief wonen aan de golfbaan in Costa Cálida Deze moderne villa's aan de frontlinie in Roda Golf (Murcia) bieden de perfecte mix van luxe, comfort en mediterrane levensstijl. Dit woonproject ligt op slechts 3 km van de gouden stranden van de Mar Menor en is ideaal voor golfliefhebbers, watersporters en mensen die op zoek zijn naar een rustige maar goed bereikbare woning aan de Costa Cálida. Het project wordt omringd door voorzieningen, restaurants, winkels en sportfaciliteiten, wat het dagelijks leven erg gemakkelijk maakt. Ruime villa's met privézwembad Elke villa is zorgvuldig ontworpen over twee verdiepingen met een totale bebouwde oppervlakte van 140 m². De indeling omvat: 3 slaapkamers (2 met eigen badkamer) 3 volledig uitgeruste badkamers Lichte woonkamer met open keuken Slaapkamer op de begane grond voor extra gemak Twee slaapkamers op de eerste verdieping met directe toegang tot het onoverdekte terras Geniet van het buitenleven met een privézwembad, een ruim terras op de begane grond en een zonneterras op de eerste verdieping met ononderbroken uitzicht op de golfbaan en de hele dag zon. Elke woning beschikt ook over een eigen parkeerplaats op het perceel en een grote buitenberging. Hoogwaardige voorzieningen Deze woningen zijn gebouwd volgens de hoogste normen en beschikken over: Vloerverwarming in de badkamers Gemotoriseerde aluminium rolluiken in alle slaapkamers Volledig ingerichte badkamers met meubilair, spiegels, verlichting en glazen douchewanden Moderne keukens met inbouwapparatuur Voorbereiding voor airconditioning in de woonkamer en slaapkamers Zonnepanelen met omvormer voor energie-efficiëntie Toplocatie in Roda Golf Deze villa's liggen in het prestigieuze Roda Golf & Beach Resort en zijn omgeven door weelderige fairways en mediterrane landschappen. Afstanden tot de belangrijkste bezienswaardigheden: Stranden van Mar Menor: 3 km Winkelcentrum Dos Mares: 5 km Jachthaven Lo Pagán: 6 km Roda Golf Clubhouse: op loopafstand Internationale luchthaven van Murcia (Corvera): 35 km Luchthaven van Alicante: 85 km Stad Cartagena: 30 km Leef de mediterrane levensstijl Of het nu gaat om een permanente woning, een vakantiehuis of een investering in verhuur, deze villa's bieden de perfecte combinatie van elegantie, functionaliteit en locatie. Neem vandaag nog contact met ons op om een bezichtiging in te plannen en uw villa aan de eerste lijn van Roda Golf te reserveren. Uw droomhuis aan de Costa Cálida wacht op u!