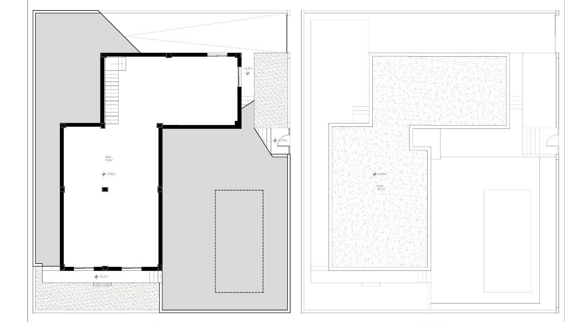
Villas neuves à Santa Rosalia Lake and Life Resort – Une vie exclusive à Murcie Emplacement privilégié près du Mar Menor Ces villas neuves sont situées dans le prestigieux Santa Rosalia Lake and Life Resort, une communauté privée et sécurisée dans la région de Murcie. Entouré de terrains de golf de premier ordre et à seulement 4 km des plages dorées du Mar Menor, le complexe offre une combinaison parfaite entre intimité, nature et luxe. La ville côtière animée de Los Alcázares est à seulement 5 minutes en voiture, tandis que la ville historique de Carthagène est à 15 minutes. L'aéroport international de Murcie est accessible en 22 km environ, ce qui garantit un accès facile depuis les principales villes européennes. Villas contemporaines conçues pour le confort Chaque villa présente un design moderne et ouvert avec 3 chambres, 2 salles de bains et des toilettes pour invités. Le salon lumineux et spacieux comprend une cuisine entièrement équipée avec un coin repas et un coin salon, donnant sur un jardin privé paysager avec piscine. Une place de parking privée hors voirie est également incluse. Au niveau inférieur, un sous-sol aménagé de 136 m² avec des murs lisses, des raccordements à l'eau et à l'électricité offre un espace polyvalent pouvant accueillir des chambres supplémentaires, un bureau, une salle de sport, une salle de cinéma ou une aire de jeux pour les enfants. Finitions de haute qualité et caractéristiques durables Le souci du détail est évident dans tous les aspects de ces maisons. Parmi les points forts, citons une porte de sécurité renforcée, des volets motorisés dans les chambres, des armoires encastrées et une cuisine équipée d'appareils électroménagers. Six panneaux solaires photovoltaïques garantissent un mode de vie durable. Le jardin est entièrement aménagé avec du gazon artificiel, des palmiers, un système d'irrigation automatique et des arbustes décoratifs. Un système de climatisation centralisé efficace assure un confort tout au long de l'année. Santa Rosalia Lake and Life Resort – Une oasis de style caribéen Le complexe dispose de 126 000 m² d'espaces verts magnifiquement aménagés avec des sentiers pédestres et cyclables, des installations sportives, des courts de paddle et de tennis, un mini-golf, des parcs pour chiens, des espaces de loisirs et un club-house. La pièce maîtresse est un spectaculaire lagon cristallin de 17 000 m² avec des plages de sable blanc et des palmiers, créant une véritable atmosphère caribéenne. Deux îles offrent des espaces de loisirs, notamment un bar et de charmants clubs de plage disséminés autour du lac. Idéal pour la détente, le sport et l'investissement Ce projet unique est parfait pour ceux qui recherchent une résidence principale, une maison de vacances ou un investissement à haut rendement. Son emplacement stratégique permet d'accéder facilement aux attractions culturelles, gastronomiques et récréatives, ce qui en fait un choix exceptionnel pour les familles et les amateurs de golf. Contactez-nous dès aujourd'hui pour réserver votre nouvelle villa au Santa Rosalia Lake and Life Resort et commencer à profiter du style de vie méditerranéen.