Complexe résidentiel régénéré à Lomas de Cabo Roig - Appartements rénovés
Appartements dans un emplacement de choix
Découvrez cette opportunité exclusive de posséder un appartement rénové à Lomas de Cabo Roig, un quartier recherché d'Orihuela Costa. Ce complexe résidentiel, construit à l'origine en 2008, fait l'objet d'une rénovation de certaines unités et sera livré en juin 2025. Une maison témoin est disponible pour une visite, vous permettant de voir les finitions de qualité de première main.
Des options immobilières pour répondre à tous les besoins
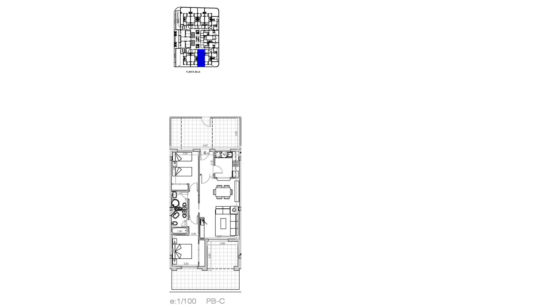
Ce projet propose 27 appartements rénovés, avec une grande variété d'agencements :
Des unités de 1 et 2 chambres à coucher, idéales pour les maisons de vacances ou les investissements.
Appartements au rez-de-chaussée avec jardins privés, parfaits pour vivre en plein air.
Appartements au premier étage avec des terrasses spacieuses, idéales pour profiter du climat méditerranéen.
Penthouses avec solariums privés, offrant des vues dégagées et un maximum d'intimité.
Chaque logement est livré avec des parois de douche dans les salles de bains et des cuisines entièrement équipées, garantissant ainsi une solution clé en main pour les acheteurs.
Aménagements communautaires exclusifs
Le complexe résidentiel est conçu pour le confort et la détente :
Une piscine commune entourée de magnifiques jardins paysagers.
Un ascenseur pour un accès facile à tous les étages.
Des places de parking souterrain disponibles en option moyennant un supplément.
Un emplacement imbattable à Orihuela Costa
Lomas de Cabo Roig est un quartier résidentiel prestigieux situé à seulement 2 km de la côte de Cabo Roig, qui abrite certaines des plus belles plages de la Costa Orihuela. Le quartier est bien desservi par la route et offre un large éventail de services, notamment des magasins, des restaurants, des supermarchés et des centres commerciaux.
Distances des principaux points d'intérêt :
Plages de Cabo Roig et Campoamor - 5 minutes en voiture.
Centre commercial Zenia Boulevard - 5 km.
Terrain de golf de Villamartín - 4 km.
Aéroport d'Alicante - 30 minutes en voiture.
Aéroport de Murcia-Corvera - 1 heure en voiture.
Un investissement intelligent sur la Costa Blanca
Avec son excellent emplacement, ses appartements entièrement rénovés et ses équipements de premier ordre, ce projet est une opportunité idéale pour l'investissement, la vie de vacances ou la résidence permanente. Ne manquez pas cette occasion unique de devenir propriétaire d'une maison dans l'un des quartiers les plus prisés de la Costa Blanca, à un prix imbattable.
Contactez-nous dès aujourd'hui pour plus d'informations ou pour programmer une visite !