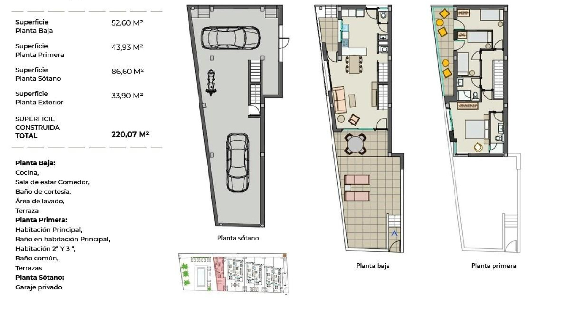
Neubau-Doppelhaushälften direkt am Strand in Moncofa mit Meerblick Erstklassige Lage an der Küste von Castellón Entdecken Sie eine exklusive Wohnanlage mit modernen Doppelhaushälften in erster Strandlinie in Moncofa, zwischen den Küstenorten Chilches und Moncofa. Diese privilegierte Lage an der Costa del Azahar bietet direkten Zugang zu ruhigen Sandstränden und einen entspannten mediterranen Lebensstil. Die Gegend eignet sich ideal sowohl als Dauerwohnsitz als auch als Feriendomizil, da lokale Restaurants, Strandbars, Supermärkte und wichtige Dienstleistungen in unmittelbarer Nähe liegen. Moncofa ist gut an das Straßennetz angebunden, sodass nahegelegene Städte wie Castellón und Valencia leicht zu erreichen sind. Modernes Design und funktionale Raumaufteilung Diese Boutique-Anlage besteht aus nur 7 eleganten Häusern, die mit klaren architektonischen Linien gestaltet wurden und bei denen Komfort und Alltagstauglichkeit im Vordergrund stehen. Jede Immobilie verfügt über 3 Schlafzimmer, 2 Badezimmer, darunter ein eigenes, sowie ein zusätzliches Gäste-WC. Die Häuser erstrecken sich über drei Ebenen, wodurch Raum und Tageslicht optimal genutzt werden. Das Erdgeschoss bietet einen offenen Wohn- und Essbereich mit einer voll ausgestatteten Küche, der nahtlos in eine private Terrasse mit wunderschönem Meerblick übergeht. Im ersten Stock befinden sich die Schlafzimmer, darunter eine geräumige Master-Suite, während einige Einheiten auf dieser Ebene auch über eine Terrasse verfügen. Im Untergeschoss befinden sich eine private Garage für 1 oder 2 Fahrzeuge sowie zusätzlicher Stauraum. Hochwertige Ausstattung und bezugsfertig Alle Villen werden komplett möbliert übergeben. Die Küchen sind mit Geräten ausgestattet, und die Badezimmer verfügen über Möbel, Spiegel und Duschwände. Die Immobilien verfügen zudem über eine vollständig installierte Klimaanlage und ein effizientes aerothermisches System für die Warmwasserversorgung, das das ganze Jahr über Komfort und Energieeffizienz gewährleistet. Exklusive Wohnanlage und Lebensstil Die Wohnanlage umfasst einen Gemeinschaftspool und gepflegte Gärten, alles in direkter Strandnähe. Dies schafft eine ruhige und sichere Atmosphäre, perfekt, um das mediterrane Klima und das Leben im Freien zu genießen. Entfernungen zu wichtigen Sehenswürdigkeiten Strand von Moncofa: 0 km Strand von Chilches: 2 km Stadtzentrum von Castellón: 30 km Stadt Valencia: 50 km Flughafen Valencia: 55 km Flughafen Castellón: 45 km Nächstgelegene Golfplätze: ca. 20 km Ihr Zuhause am Mittelmeer erwartet Sie Ob Sie nun einen ständigen Wohnsitz, ein Ferienhaus oder eine kluge Investition suchen – diese Doppelhaushälften direkt am Strand in Moncofa bieten eine einzigartige Gelegenheit, das Meer, Komfort und modernes Design in einer der authentischsten Küstenregionen Spaniens zu genießen. Kontaktieren Sie uns noch heute für weitere Informationen oder um einen Besichtigungstermin zu vereinbaren. 490