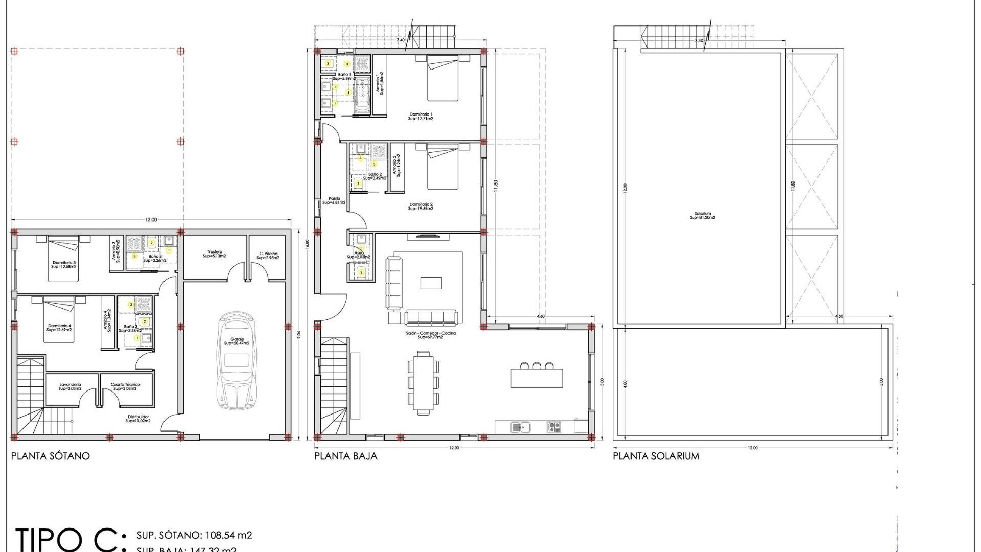
Luxuriöse Neubauvillen in Finestrat in der Nähe von Benidorm Exklusive Kollektion nachhaltiger, unabhängiger Villen Diese prestigeträchtige Wohnanlage umfasst 36 unabhängige Villen in der begehrten Urbanisation Bahia Golf in Finestrat, nur 3,5 km von der Mittelmeerküste entfernt. Diese modernen Häuser wurden entworfen, um Luxus, Komfort und Nachhaltigkeit zu verbinden, und bieten einen außergewöhnlichen Lebensstil an der Costa Blanca, umgeben von Natur und dennoch in der Nähe aller Dienstleistungen. Jede Villa verfügt über 3 oder 4 geräumige Schlafzimmer, einen privaten Landschaftsgarten und einen privaten Infinity-Pool. Ausgewählte Einheiten bieten einen atemberaubenden Meerblick, während alle Immobilien auf großzügigen Grundstücken von mehr als 500 m² mit einer bebauten Fläche ab 222 m² liegen. Flexible Grundrisse mit Keller und Dachterrasse Käufer können aus vier verschiedenen Grundrissen wählen, die alle sorgfältig entworfen wurden, um den Platz und das natürliche Licht optimal zu nutzen. Jede Villa verfügt über ein Untergeschoss mit Privatparkplatz, Abstellraum, Waschküche und zwei Schlafzimmern mit eigenem Bad, die mit einer englischen Terrasse verbunden sind, die für natürliches Licht und Belüftung sorgt. Im Erdgeschoss befinden sich ein oder zwei weitere Schlafzimmer mit eigenem Bad, eine Gästetoilette und eine offene Küche, die mit dem Wohn- und Essbereich verbunden ist und direkten Zugang zur Terrasse und zum Pool bietet. Jede Immobilie verfügt über eine Dachterrasse mit Panoramablick auf die Berge oder das Meer und der Möglichkeit, einen Whirlpool zu installieren. Hochwertige Ausstattung und BREEAM-Energieeffizienz Diese Villen werden nach den BREEAM-Zertifizierungsstandards gebaut, die eine hervorragende Energieeffizienz und Umweltverträglichkeit gewährleisten. Zur hochwertigen Ausstattung gehören: Doppelverglaste Aluminiumfenster mit thermischer Trennung und elektrischen Rollläden Voll installierte Klimaanlage Motorisiertes Zugangstor für Fahrzeuge Privater Swimmingpool und Landschaftsgarten Moderne Küche von PORCELANOSA mit Geräten Designer-Badezimmer mit Möbeln, Spiegeln und begehbaren Duschen Porzellanfliesen von PORCELANOSA Erstklassige Lage in der Nähe von Stränden, Golfplätzen und Einkaufsmöglichkeiten Finestrat ist eine charmante Stadt zwischen den Bergen und dem Meer, die Ruhe bietet und gleichzeitig nur wenige Minuten vom pulsierenden Benidorm entfernt ist. Die Gegend verbindet natürliche Schönheit mit einer ausgezeichneten Infrastruktur, internationalen Schulen, Restaurants und Einkaufszentren. Entfernungen zu wichtigen Sehenswürdigkeiten Strände von Benidorm 3,5 km Einkaufszentrum La Marina 1 km Puig Campana Golf 3 km Altstadt von Benidorm 4 km Flughafen Alicante 55 km Anschluss an die Autobahn A7 2 km Leben Sie den mediterranen Traum in Finestrat Diese Villen bieten die perfekte Balance zwischen Luxus, Natur und Anbindung an die Costa Blanca. Kontaktieren Sie uns noch heute, um weitere Informationen zu erhalten oder eine private Besichtigung dieser außergewöhnlichen Neubauten in Finestrat zu vereinbaren.