Erleben Sie modernes Wohnen an der Küste im Herzen von Torrevieja in diesen zeitgemäßen, neu erbauten Apartments. Nur 150 Meter vom Meer und 500 Meter vom Strand Playa del Cura entfernt, vereint dieser Komplex urbanen Komfort mit der Ruhe einer Küstenlage.
• Moderne Apartments mit 2 Schlafzimmern und 2 Badezimmern.
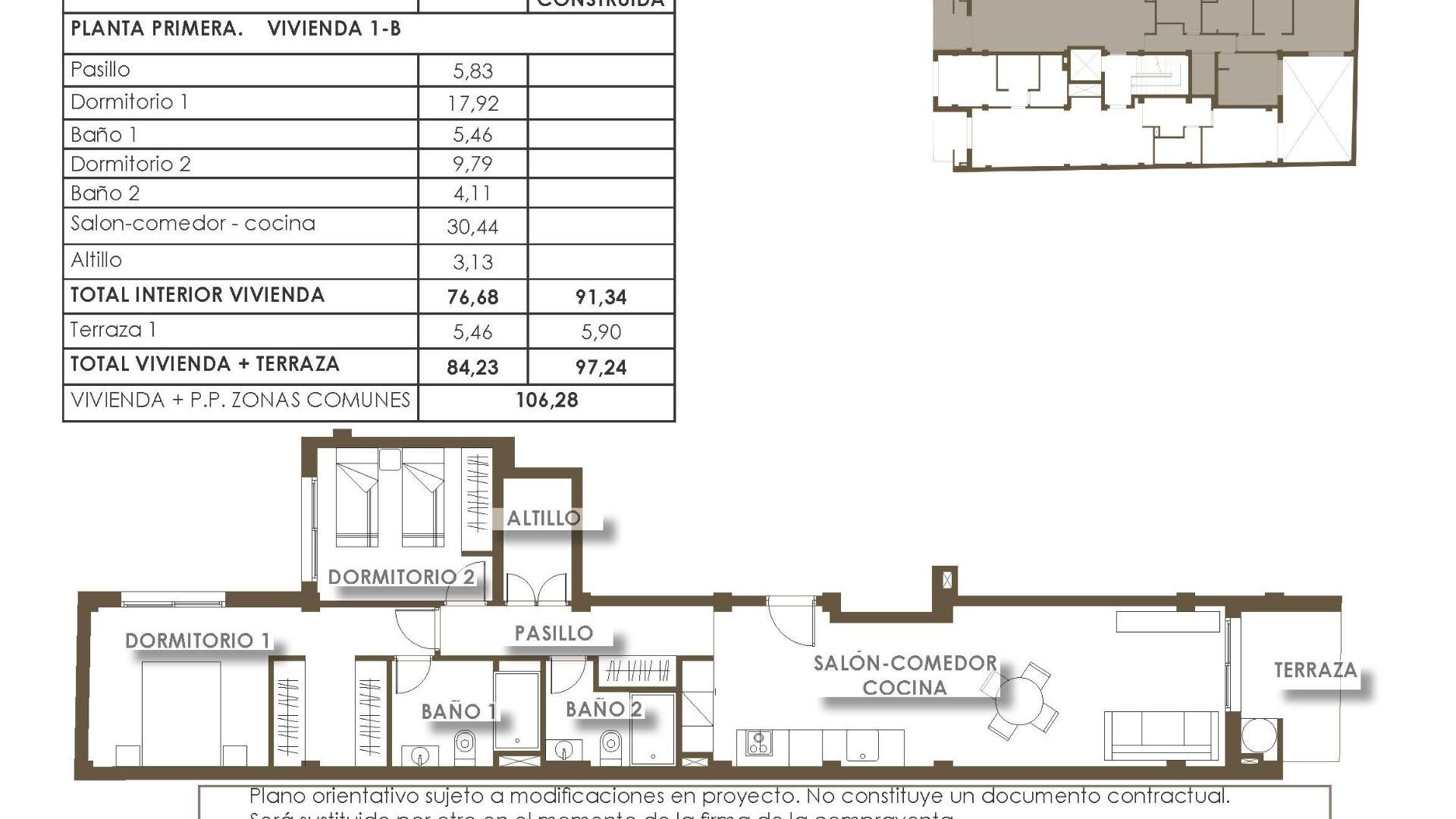
• 91 m² Wohnfläche mit großzügigen Terrassen
• Voll ausgestattete amerikanische Küchen
• Badezimmer mit Möbeln, Duschwänden und Fußbodenheizung.
• Vorinstallation einer Klimaanlage mit Luftkanälen
• Gemeinschaftspool und Sauna im Erdgeschoss.
• Dachterrasse mit gemeinsamem Solarium
• Zwei exklusive Penthäuser mit privatem Solarium, Grillplatz und Swimmingpool
• Zentrale Toplage in unmittelbarer Nähe von Geschäften, Cafés, Restaurants und Parks.
• Nur 150 m vom Boulevard und den natürlichen Schwimmbecken entfernt.
Diese modernen Apartments in Torrevieja vereinen Komfort, Stil und Funktionalität. Die offenen Grundrisse sorgen für optimale Lichtverhältnisse und schaffen großzügige Wohnbereiche, die nahtlos in die weitläufigen Terrassen übergehen. Die Küchen sind mit modernen Geräten ausgestattet, und die Badezimmer verfügen über hochwertige Armaturen und Fußbodenheizung.
Zu den Gemeinschaftsbereichen gehören ein erfrischender Swimmingpool und eine Sauna im Erdgeschoss, während die Dachterrasse mit einem gemeinschaftlichen Solarium zum Sonnenbaden und Entspannen im Freien einlädt. Zwei exklusive Penthäuser bieten private Solarien, Grillplätze und Swimmingpools für zusätzlichen Luxus.
Diese modernen Apartments befinden sich in idealer Lage im Herzen von Torrevieja, einem der lebendigsten Küstenorte an der Costa Blanca. Die Bewohner schätzen die Nähe zur Promenade, den natürlichen Pools, dem Strand Playa del Cura sowie einer Vielzahl von Geschäften, Cafés, Restaurants und Parks.
Torrevieja ist bekannt für seine Salzseen und den geschützten Naturpark La Mata und Torrevieja , der nur 4 km vom Wohngebiet entfernt liegt. Die wunderschönen rosafarbenen und grünen Lagunen, Wanderwege, Radwege und die vielfältige Tierwelt des Parks machen ihn zu einem Paradies für Naturliebhaber und einem idealen Ort für Outdoor-Aktivitäten.
Für Golfbegeisterte liegen erstklassige Golfplätze wie Villamartín, La Marquesa und La Finca alle im Umkreis von 8 km. Die Stadt bietet außerdem das ganze Jahr über kulturelle Veranstaltungen, Wochenmärkte und lebhafte Feste, die zu ihrer lebendigen Atmosphäre beitragen.
Die Verkehrsanbindung ist hervorragend: Der Flughafen Alicante ist nur 45 km und der Flughafen Murcia 60 km entfernt. Über die Autobahn AP-7 erreichen Sie bequem weitere Ziele an der Costa Blanca. Ob Sie ein dauerhaftes Zuhause, ein Ferienhaus oder eine Kapitalanlage suchen – Torrevieja bietet die perfekte Kombination aus Küstenflair, Naturschönheit und einem lebendigen Stadtleben.
• Gemeinschaftspool, Sauna und Solarium auf dem Dach.
• Exklusive Penthäuser mit privatem Solarium und Swimmingpool
• Moderne, energieeffiziente Einrichtungen im gesamten Gebäude
• Voll ausgestattete Küchen und Fußbodenheizung.